LG LDPH7972B handleiding
Handleiding
Je bekijkt pagina 140 van 196

12 INSTALLATION
a Tournevis plat
b Tournevis Phillips
c Scie-cloche à lame de 2 1/2 po (6,35 cm) min.
d Perceuse électrique
e Gants
f Lunettes de protection
g Clé ajustable
h Ruban à mesurer
i Couteau tout usage
j Niveau
k Clé à tête carrée ¼ po (0,64 cm)
l Pince coupante
m Pinces
n Pince à dénuder
o Coupe-tube
p Clé à tête carrée de 3/8 po avec douille de 1/
2po
Aperçu de lʼinstallation
Veuillez d’abord lire les instructions d’installation
suivantes après avoir acheté ce lave-vaisselle ou
après l’avoir transporté à un autre endroit.
a Préparer lʼouverture de lʼarmoire
b Préparation des raccords des conduites d’eau
et du branchement électrique
c Préparer le lave-vaisselle
d Positionnement du lave-vaisselle dans
l’ouverture de lʼarmoire
e Raccordement de lʼalimentation en eau et
branchement électrique
f Raccordement du tuyau de vidange
g Mise de niveau du lave-vaisselle
h Fixation du lave-vaisselle dans l’ouverture de
lʼarmoire
i Dernière vérification de l’installation
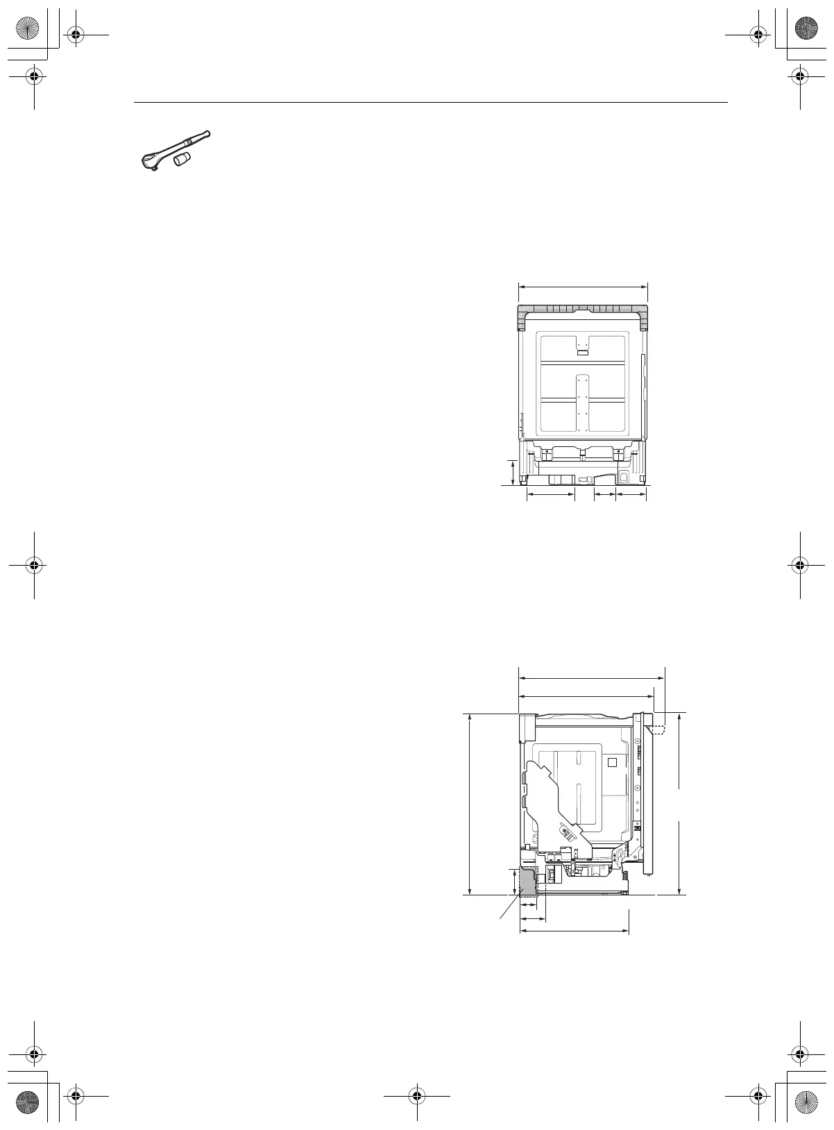
Dimensions du produit
Vue arrière
Vue latérale
Pour faciliter lʼinstallation, tenez compte des zones
de dégagement
a indiquées dans la base du lave-
vaisselle pour les conduites dʼeau et dʼélectricité.
Le tuyau dʼalimentation en eau, le tuyau de
vidange et le câble électrique doivent être passés
dans cet emplacement.
p
23 /4" (603 mm)
3
9 /8"
(238 mm)
3
4 /16"
(119 mm)
5
/4"
(134 mm)
11
1
4 /2"
(115 mm)
1
33 /16"
(846 mm)
5
4 /2"
(115 mm)
1
33 /8"
(854 mm)
5
2 /16" (75 mm)
15
20 /16" (512 mm)
3
24 /8" (625 mm)
5
4 /4" (120 mm)
3
26 /8 - 26 /16" (676 - 681 mm)
513
a
fc_main.book.book Page 12 Wednesday, June 29, 2022 2:50 PM
Bekijk gratis de handleiding van LG LDPH7972B, stel vragen en lees de antwoorden op veelvoorkomende problemen, of gebruik onze assistent om sneller informatie in de handleiding te vinden of uitleg te krijgen over specifieke functies.
Productinformatie
| Merk | LG |
| Model | LDPH7972B |
| Categorie | Wasmachine |
| Taal | Nederlands |
| Grootte | 29696 MB |







