LG LDPH7972B handleiding
Handleiding
Je bekijkt pagina 11 van 196

11INSTALLATION
ENGLISH
a Flat-Blade Screwdriver
b Phillips Screwdriver
c Hole Saw min. 2 1/2” bit
d Electric Drill
e Gloves
f Safety Glasses
g Adjustable Wrench
h Tape Measure
i Utility Knife
j Level
k 1/4” Square Drive Wrench
l Nipper
m Pliers
n Wire Stripper
o Tubing Cutter
p 3/8” Square Drive Wrench + 1/2” Socket
Installation Overview
Please read the following installation instructions
first after purchasing this dishwasher or
transporting it to another location.
a Preparing Cabinet Opening
b Preparing Water and Electrical Connections
c Preparing Dishwasher
d Sliding Dishwasher into Cabinet Opening
e Connecting Water Supply Line and Power
f Connecting the Drain Hose
g Leveling Dishwasher
h Securing Dishwasher in Cabinet Opening
i Final Installation Check
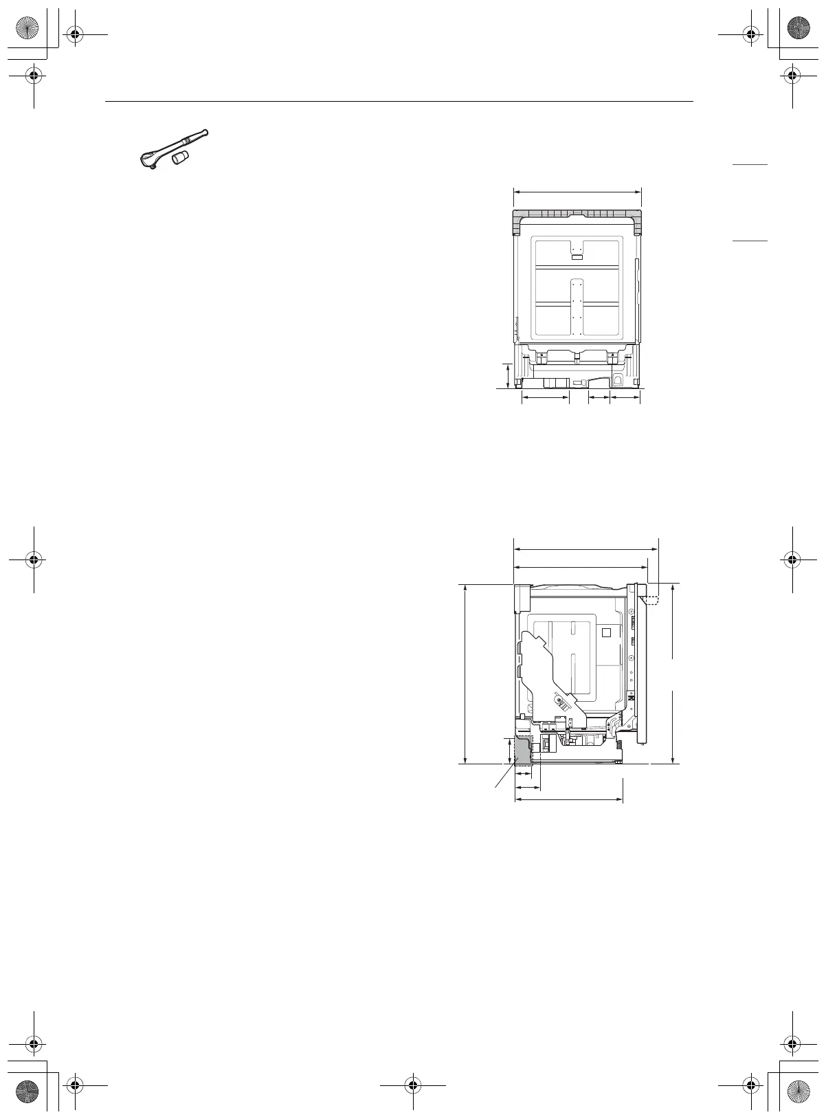
Product Dimensions
Back View
Side View
For easiest installation, see marked areas a for
water and electrical clearances in base of
dishwasher. Water supply hose, drain hose and
electric cable should be passed through this area.
Preparing Cabinet Opening
This dishwasher is designed to fit a standard
dishwasher opening. An opening may be needed
on both sides to route plumbing and electrical
connections.
• To ensure proper drainage, install the
dishwasher no more than 12 ft. (3.65 m) from
the sink.
• The location must have sufficient space for the
dishwasher door to open easily and provide at
p
23 /4" (603 mm)
3
9 /8"
(238 mm)
3
4 /16"
(119 mm)
5
/4"
(134 mm)
11
1
4 /2"
(115 mm)
1
33 /16"
(846 mm)
5
4 /2"
(115 mm)
1
33 /8"
(854 mm)
5
2 /16" (75 mm)
15
20 /16" (512 mm)
3
24 /8" (625 mm)
5
4 /4" (120 mm)
3
26 /8 - 26 /16" (676 - 681 mm)
513
a
us_main.book.book Page 11 Wednesday, June 29, 2022 8:57 AM
Bekijk gratis de handleiding van LG LDPH7972B, stel vragen en lees de antwoorden op veelvoorkomende problemen, of gebruik onze assistent om sneller informatie in de handleiding te vinden of uitleg te krijgen over specifieke functies.
Productinformatie
| Merk | LG |
| Model | LDPH7972B |
| Categorie | Wasmachine |
| Taal | Nederlands |
| Grootte | 29696 MB |







