LG LDFN4542BSS handleiding
Handleiding
Je bekijkt pagina 12 van 180

12 INSTALLATION
Installation Overview
Preparing Cabinet Opening
Preparing Electrical Wiring
Preparing Water Supply Connection
Preparing the Dishwasher
Removing Lower Cover
Sliding the Dishwasher into Cabinet
Leveling the Dishwasher
Securing the Dishwasher to Countertop
Connecting the Drain Hose
Connecting Water Supply
Connecting Power
Final Check
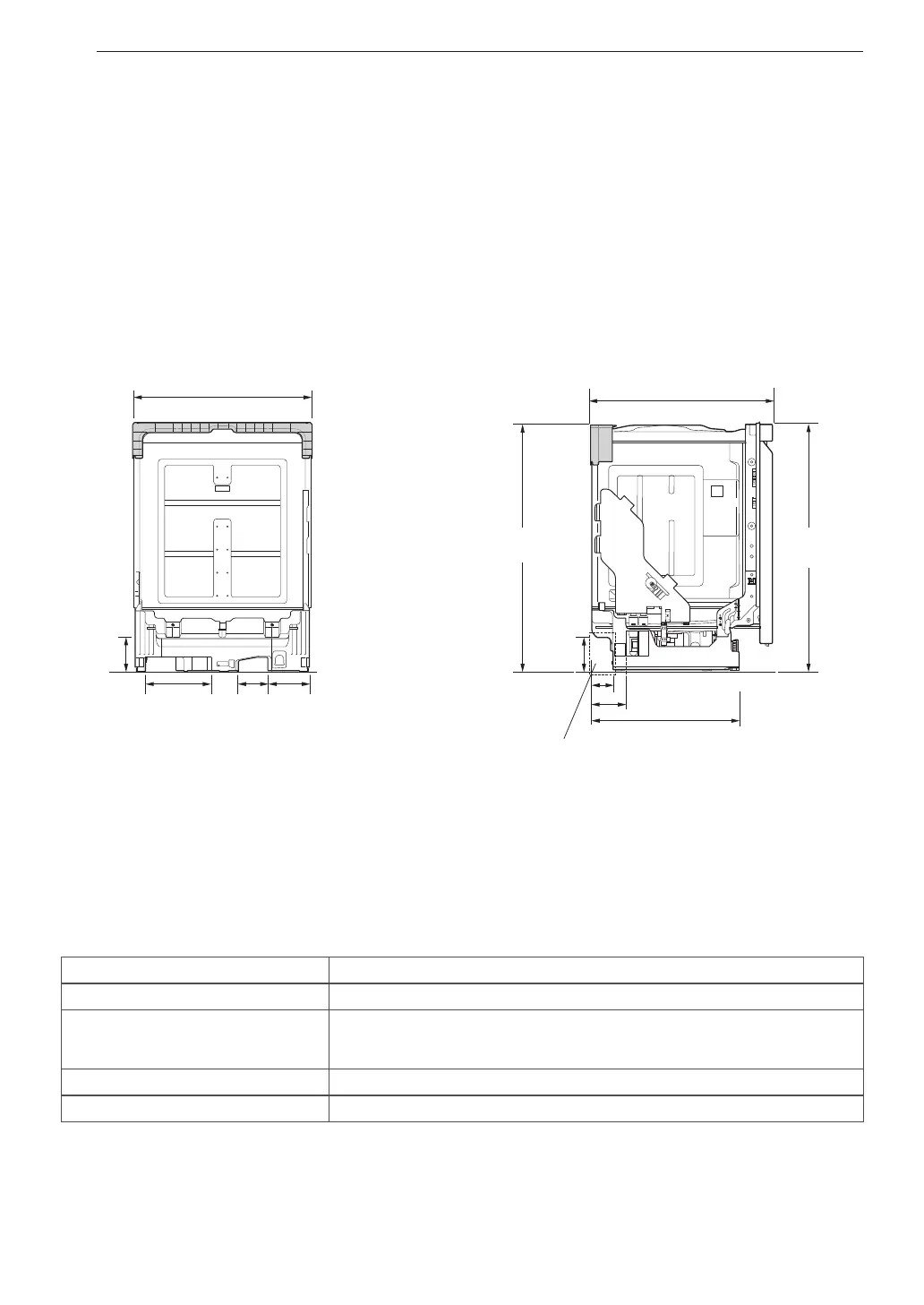
Product Dimensions
Back view Side view
33 /16"
(846 mm)
5
23 /4" (603 mm)
3
4 /2"
(115 mm)
1
33 /8"
(854 mm)
5
2 /16" (75 mm)
15
20 /16" (512 mm)
3
24 /8" (625 mm)
5
4 /4" (120 mm)
3
9 /8"
(238 mm)
3
4 /16"
(119 mm)
5
/4"
(134 mm)
11
1
4 /2"
(115 mm)
1
Water supply hose, drain hose and electric cable should be passed
through this area.
NOTE
• For easiest installation, see marked areas above for water and electrical clearances in base of dishwasher.
Product Specifications
The appearance and specifications listed in this manual may vary due to constant product improvements.
Electrical requirement 120 V, 60 Hz AC only, minimum 15 A circuit breaker
Water pressure 20 - 80 psi (140 - 550 kPa)
Dimensions
23
3
/4"(W) X 24
5
/8"(D) X 33
5
/8"(H)
603 mm(W) X 625 mm(D) X 854 mm(H)
Inlet water temperature 120 °F (49 °C) minimum, 149 °F (65 °C) maximum
Net weight 75 - 89 lbs. (34 - 40 kg)
Bekijk gratis de handleiding van LG LDFN4542BSS, stel vragen en lees de antwoorden op veelvoorkomende problemen, of gebruik onze assistent om sneller informatie in de handleiding te vinden of uitleg te krijgen over specifieke functies.
Productinformatie
| Merk | LG |
| Model | LDFN4542BSS |
| Categorie | Wasmachine |
| Taal | Nederlands |
| Grootte | 20451 MB |







