Handleiding
Je bekijkt pagina 13 van 172

13INSTALLATION
ENGLISH
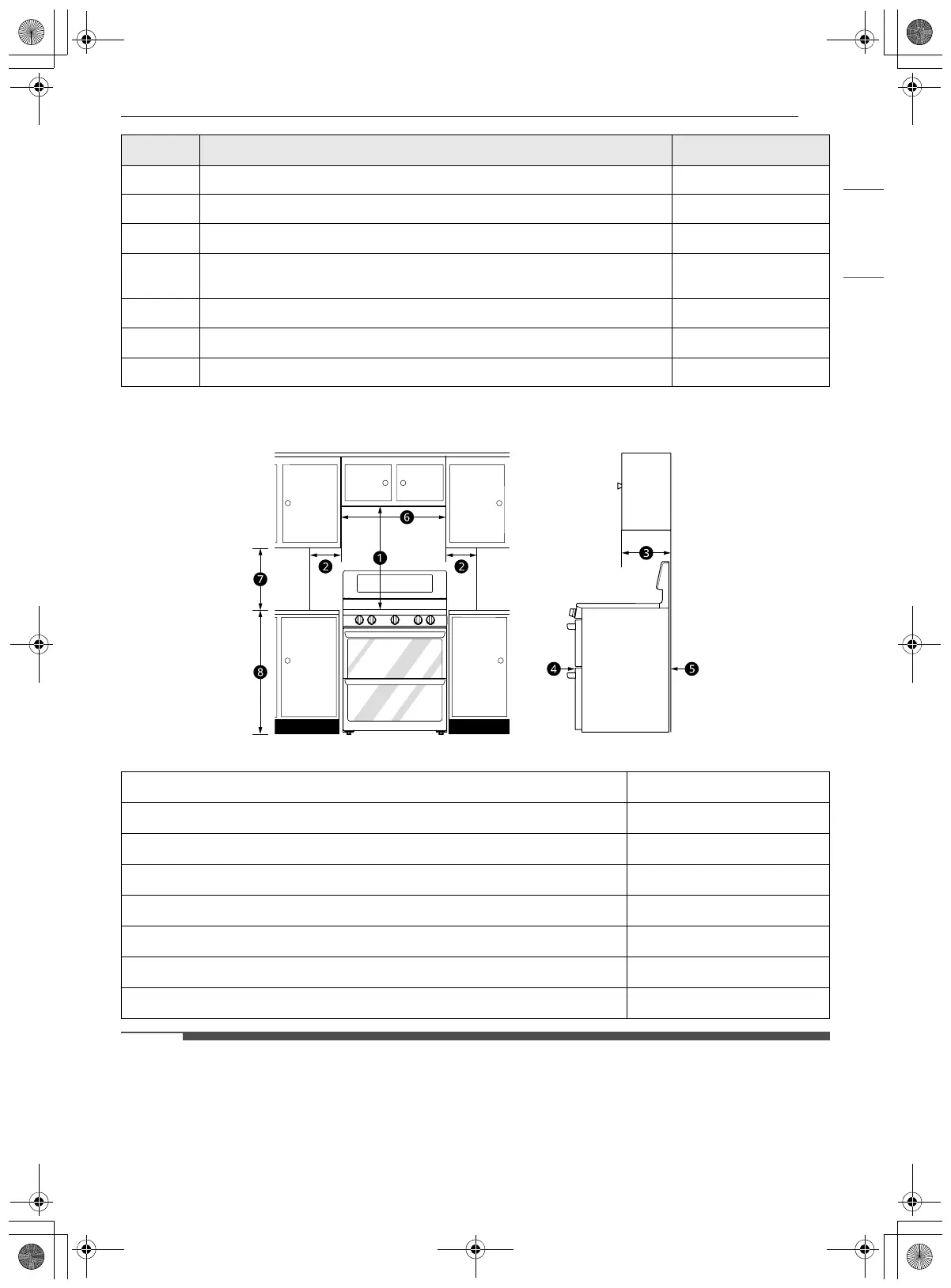
Minimum Dimensions
NOTE
• a 30" (76.2 cm) minimum clearance between the top of the cooking surface and the bottom of an
unprotected wood or metal cabinet; or 24" (60.9 cm) minimum when bottom of wood or metal cabinet is
protected by not less than 1/4" (0.64 cm) flame retardant millboard covered with not less than no. 28
MSG sheet steel, 0.015" (0.381 mm) stainless steel, 0.024" (0.610 mm) aluminum or 0.020" (0.508 mm)
copper.
BHeight 46 15/32" (1180.1 mm)
C Depth (Includes Door Handle) 29 1/4" (743.1 mm)
D Height (Cooking surface) 36" (913.0 mm)
E
Depth (Includes only the product body that is loaded into the cabinet.
Excludes door, drawer, and handles)
24 3/4" (628.5 mm)
F Depth (Excludes Door Handle) 26 27/32" (682.0 mm)
G Depth when upper door is fully opened 38 5/8" (981.2 mm)
H Depth when lower door is fully opened 42 3/16" (1072.2 mm)
a Minimum distance from top of range to combustible surface overhead
30" (76.2 cm)
b Minimum clearance to left/right wall
5" (12.7 cm)
c Maximum depth for cabinets above countertops
13" (33.0 cm)
d Front edge of the range side panel forward from cabinet
2 1/4" (6.3 cm)
e To cabinets below cooktop and at the range back
0"
f Minimum opening in overhead cabinets
30" (76.2 cm)
g Minimum distance from countertop to overhead cabinets at side
15" (38.1 cm)
h Height of countertop
36" (91.3 cm)
- Dimensions LDEL7324*S
en-us_main.book.book Page 13 Thursday, April 25, 2024 11:04 AM
Bekijk gratis de handleiding van LG LDEL7324SE, stel vragen en lees de antwoorden op veelvoorkomende problemen, of gebruik onze assistent om sneller informatie in de handleiding te vinden of uitleg te krijgen over specifieke functies.
Productinformatie
| Merk | LG |
| Model | LDEL7324SE |
| Categorie | Fornuis |
| Taal | Nederlands |
| Grootte | 22896 MB |







