Handleiding
Je bekijkt pagina 3 van 16

3
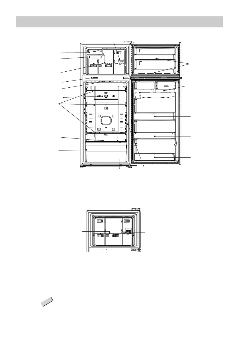
Identification of Parts
NOTE
Due to continuous improvements at LG, specifications of refrigerator are subject to change without prior notice.
If you find out some parts which are not in your unit, the parts are applied to other models.
Except during transportation & maintenance, the shelves must be considered as fixed when in normal use.
Freezer Door Basket
Egg Store Shelf
Freezer Shelf
Double twist Ice Tray
Ice Bank
Deodorizer (Optional)
Shelves
Refrigerator Temperature Knob
Humidity Controller
Tray Vegetable
Freezer Knob Setting
Cell fresh crisper
Reed Switch
Locker Spindle(Optional)
Door Basket
(Optional)
Door Basket
(Optional)
Door
Basket
Ice Tray
(Quantity as per
Model Purchased)
Freezer Wire
Shelf
Freezer Compartment View may vary as per Model purchased.
Bekijk gratis de handleiding van LG GL-G302RPBB, stel vragen en lees de antwoorden op veelvoorkomende problemen, of gebruik onze assistent om sneller informatie in de handleiding te vinden of uitleg te krijgen over specifieke functies.
Productinformatie
Merk | LG |
Model | GL-G302RPBB |
Categorie | Koelkast |
Taal | Nederlands |
Grootte | 1848 MB |