Handleiding
Je bekijkt pagina 16 van 140

16 INSTALLATION
1 Open the door from the side so that the hinge
screws are accessible.
2 Remove the four hinge screws.
• While supporting the door, remove the four
hinge screws, two from each hinge. Set the
door aside face down on a protected
surface to prevent damage to the door or
the work surface.
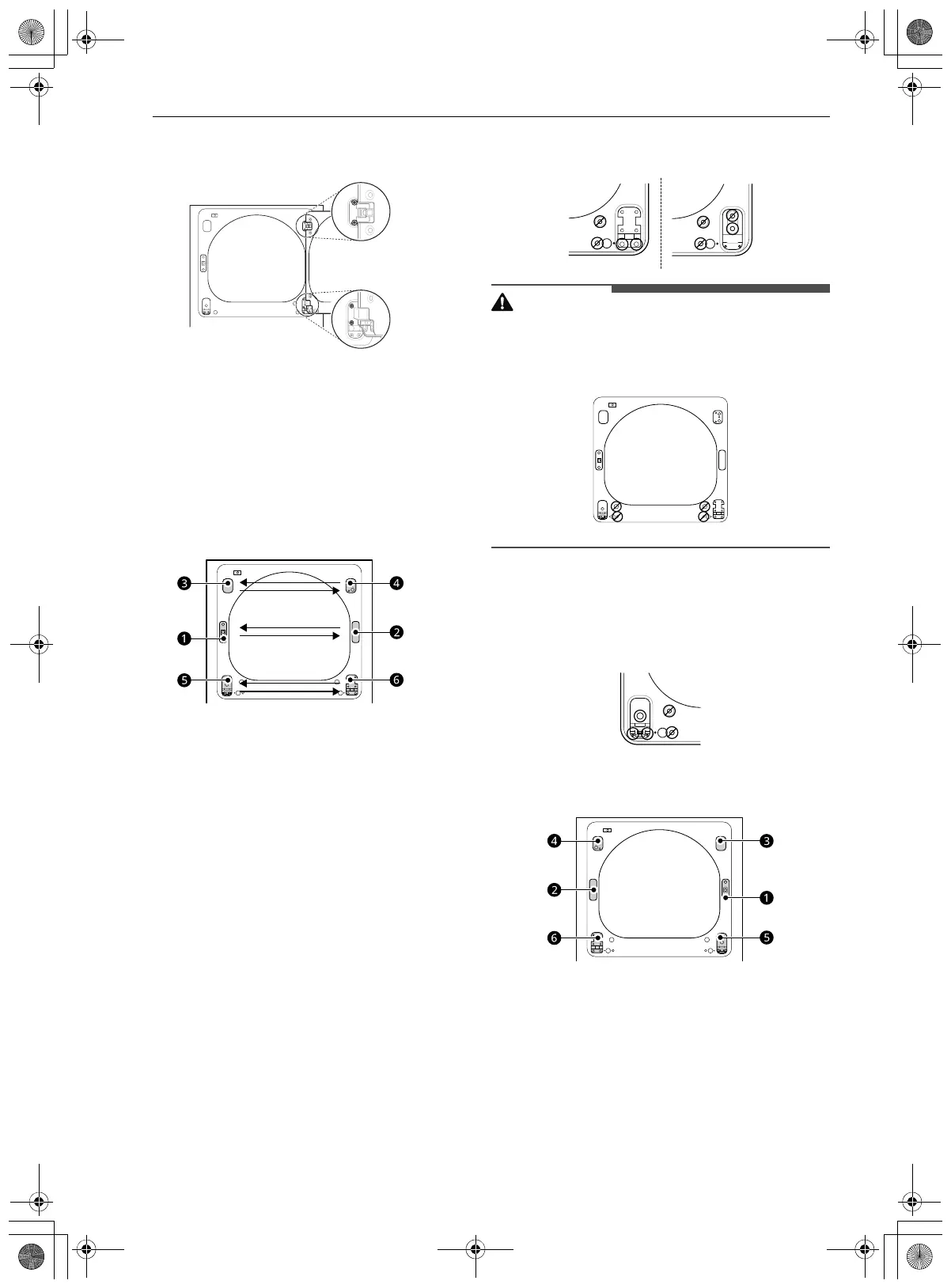
3 Reverse the components on the cabinet.
1) Use a phillips screwdriver to remove the
two screws and the latch mechanism
a
on the front panel of the cabinet.
2) Remove the latch hole cover b by gently
prying it up with a flat blade screwdriver,
being careful not to scratch the paint.
Install the latch hole cover on the
opposite side, where the latch mechanism
was removed. Install the latch mechanism
in the position from which you removed
the latch hole cover, using the two screws
removed in a previous step.
3) Remove the hinge cover
c by gently
prying it up with a flat blade screwdriver,
being careful not to scratch the paint.
Rotate the hinge cover 180 degrees and
install it on the opposite side d, where
the hinge was attached.
4) Reverse the hinge e and the hinge
bracket
f at the bottom of the cabinet.
Remove the two screws from the hinge
bracket at the bottom right and remove
the hinge bracket. Remove the lower of
the two screws behind the hinge bracket.
Do NOT remove the upper screw behind
the hinge bracket. Set the parts aside.
CAUTION
• Do NOT remove any of the eight screws on the
face of the cabinet (marked below). Doing so
could result in damage to the dryer and the need
for a service call to repair the dryer.
5) Remove the three screws on the hinge at
the bottom left. Remove the hinge and
reinstall it on the right side. The top screw
will occupy the hole where you removed
the screw behind the hinge bracket in a
previous step.
6) Install the hinge bracket on the bottom
left side, first installing one screw behind
the hinge bracket.
ON THE DOOR :
1 Lift off the door cover.
• With the door laid inside facing up on a
protected surface, remove the twelve
screws on the inside of the door. Carefully
lift off the door cover with the help of a
small flat blade screwdriver inserted in the
upper corner (circled below).
en-us_main.book.book Page 16 Tuesday, December 12, 2023 12:59 PM
Bekijk gratis de handleiding van LG DLEX8600WH, stel vragen en lees de antwoorden op veelvoorkomende problemen, of gebruik onze assistent om sneller informatie in de handleiding te vinden of uitleg te krijgen over specifieke functies.
Productinformatie
Merk | LG |
Model | DLEX8600WH |
Categorie | Wasdroger |
Taal | Nederlands |
Grootte | 17316 MB |