Kuppersbusch FKU1540.0i handleiding
Handleiding
Je bekijkt pagina 35 van 216

DE
13
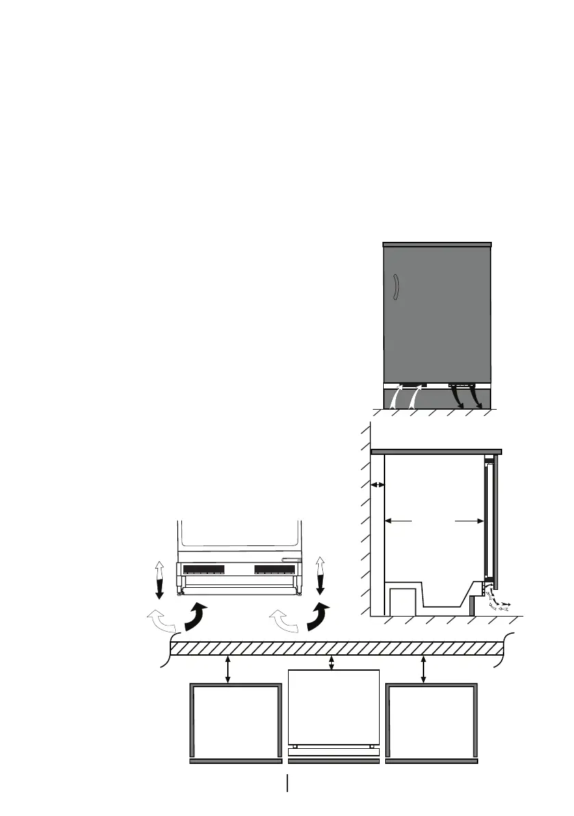
Kühlschrank unter einer
Arbeitsplatte installieren, Füße
einstellen
Achten Sie bei der Aufstellung Ihres
Kühlschranks auf einen Mindestabstand
von 30 mm zwischen Gerät und Wand;
siehe Abbildung.
Die Belüftungsöffnungen dürfen nicht
blockiert werden; andernfalls kann es
vorkommen, dass Ihr Kühlgerät mit
verminderter Leistung arbeitet. (140 cm
2
)
Wenn Ihr Kühlschrank nicht absolut
gerade steht:
Zum Ausbalancieren Ihres Kühlschranks
können Sie die Vorderfüße durch Drehen
verstellen; siehe Abbildung. Wenn Sie
den Fuß in Richtung des schwarzen Pfeils
drehen, senkt sich die entsprechende
Ecke. Wenn Sie in Gegenrichtung
drehen, wird die Ecke angehoben. Sie
können sich die Einstellung erleichtern,
wenn Sie einen Helfer bitten, das Gerät
dabei etwas anzuheben.
30 mm
545 mm
40 mm 40 mm
30 mm
Bekijk gratis de handleiding van Kuppersbusch FKU1540.0i, stel vragen en lees de antwoorden op veelvoorkomende problemen, of gebruik onze assistent om sneller informatie in de handleiding te vinden of uitleg te krijgen over specifieke functies.
Productinformatie
Merk | Kuppersbusch |
Model | FKU1540.0i |
Categorie | Niet gecategoriseerd |
Taal | Nederlands |
Grootte | 17741 MB |