Handleiding
Je bekijkt pagina 35 van 137

35
© 2021 KOSTAL Solar Electric GmbH
Installation
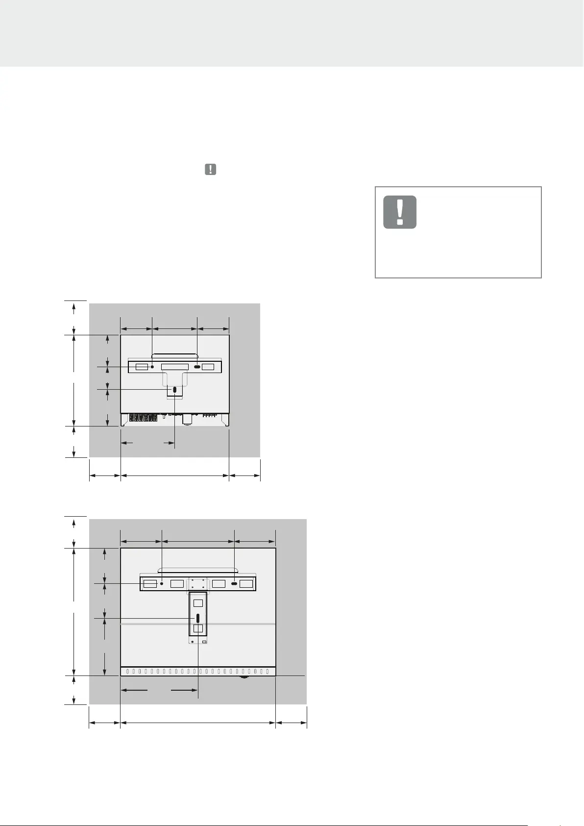
Installation dimensions
For installation, use retaining bolts that are suitable for
the base, the weight of the inverter and the ambient
conditions.
Requirement of retaining bolts:
Ø 12 mm, 8.8, A2-70
(mm)
400 400855
600
PIKO CI 50/60
600
710
227,5
400 227,5
318
192
200
427
PIKO CI 30
500
600
470
162,5 230 162,5
187
118
165
200 200555
277,5
Fig. 12: Installation dimensions with bracket
IMPORTANT
INFORMATION
Be absolutely sure to maintain the
clearance around the inverter in or-
der that the inverter remains cool.
3
2
3
4
5
6
7
8
9
10
1
Bekijk gratis de handleiding van Kostal Piko CI 60, stel vragen en lees de antwoorden op veelvoorkomende problemen, of gebruik onze assistent om sneller informatie in de handleiding te vinden of uitleg te krijgen over specifieke functies.
Productinformatie
| Merk | Kostal |
| Model | Piko CI 60 |
| Categorie | Airco |
| Taal | Nederlands |
| Grootte | 13606 MB |

