Handleiding
Je bekijkt pagina 124 van 137

124
© 2021 KOSTAL Solar Electric GmbH
Technical data
Ω
µC
µC
U
U U
I
I
DC Switch
SW1
DC Switch
SW2
EMC
EMC
EMC
EMC
RCMCU EMC
L1
L2
L3
N
PE
DC2
DC3
DC4
DC6
DC7
DC8
COM1
COM2
LED
DC10
DC11
DC13
DC14
MPPT1
MPPT2
MPPT3
MPPT4
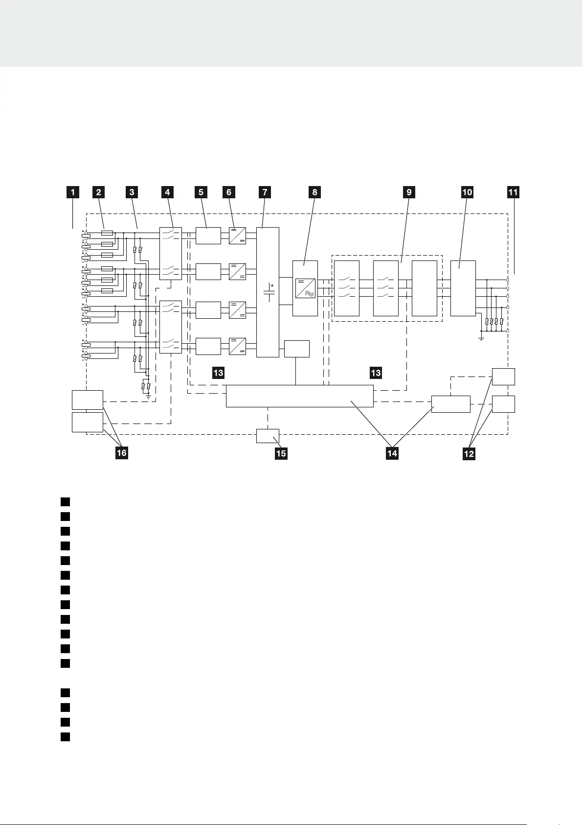
Fig. 35: Block diagram for PIKO CI 50
1
DC inputs for PV modules
2
DC fuses
3
Integrated overvoltage protection (DC side)
4
Electronic DC disconnection device
5
EMC filter (DC side)
6
DC regulator
7
Intermediate circuit
8
Inverter bridge circuit
9
Grid monitoring and shut-down
10
EMC filter (AC side)
11
AC connection
12
COM1 and COM2 connection panels for communi-
cation interfaces
13
Voltage and current measurement
14
Control system and communication
15
Status LED
16
DC switch
8
2
3
4
5
6
7
8
9
10
1
Bekijk gratis de handleiding van Kostal Piko CI 30, stel vragen en lees de antwoorden op veelvoorkomende problemen, of gebruik onze assistent om sneller informatie in de handleiding te vinden of uitleg te krijgen over specifieke functies.
Productinformatie
| Merk | Kostal |
| Model | Piko CI 30 |
| Categorie | Airco |
| Taal | Nederlands |
| Grootte | 13647 MB |

