Kospel SV-800.1 handleiding
Handleiding
Je bekijkt pagina 6 van 92

6
45°
45°
K
K’
D
d
F
G
I
J
A
B
C
E
H
4
6
2
3
7
1
5
8
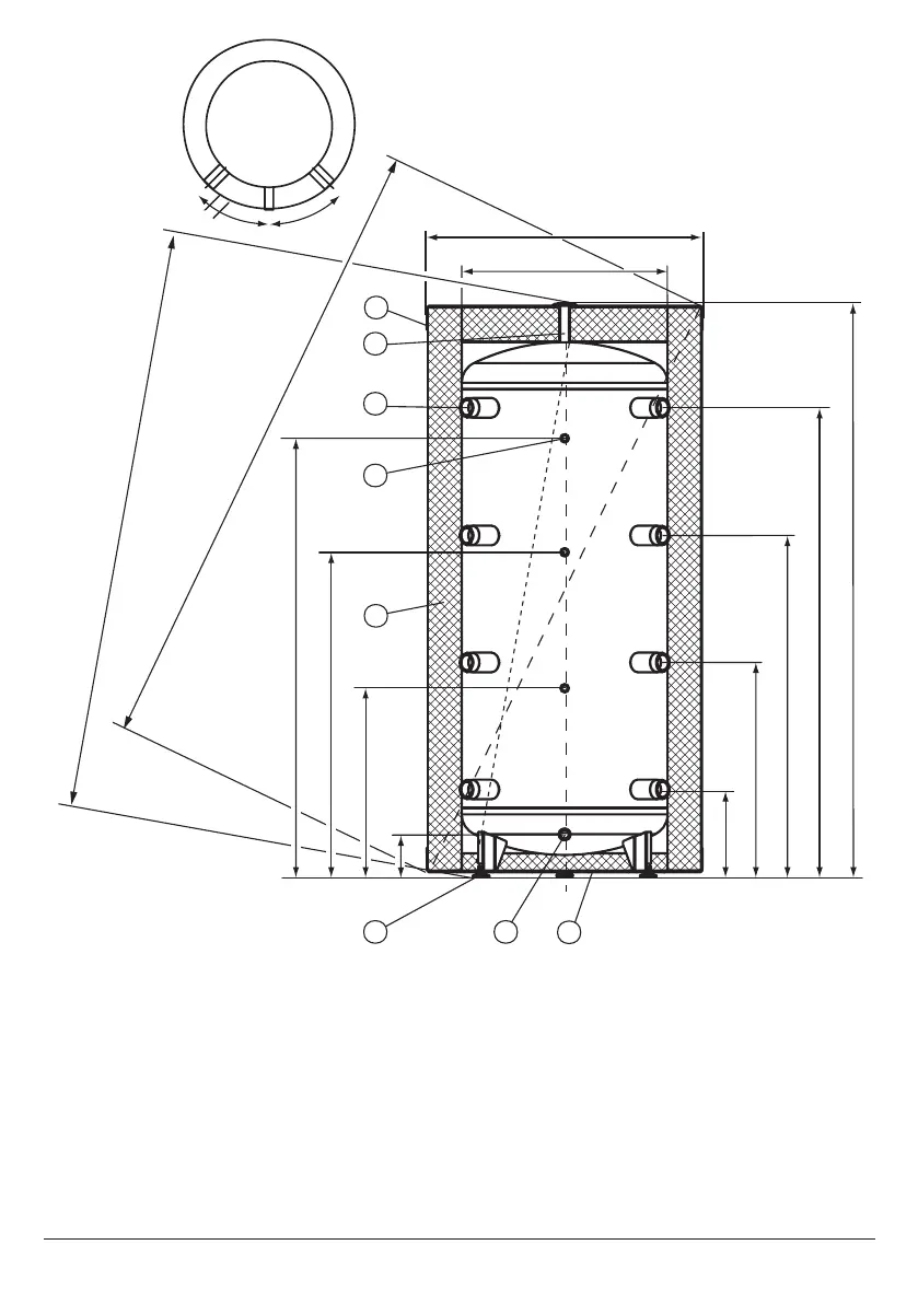
Budowa zbiornika buforowego SV (400l; 500l; 800l; 1000l)
[1] - pokrywa górna
[2] - króciec przyłącza odpowietrznika (1/2”)
[3] - króciec przyłączeniowy (6/4”)
[4] - króciec czujnika temperatury (1/2”)
[5] - izolacja termiczna
[6] - stopki
[7] - króciec spustowy (1/2”)
[8] - pokrywa dolna
Bekijk gratis de handleiding van Kospel SV-800.1, stel vragen en lees de antwoorden op veelvoorkomende problemen, of gebruik onze assistent om sneller informatie in de handleiding te vinden of uitleg te krijgen over specifieke functies.
Productinformatie
| Merk | Kospel |
| Model | SV-800.1 |
| Categorie | Niet gecategoriseerd |
| Taal | Nederlands |
| Grootte | 7382 MB |
