Kospel SV-1000.1 handleiding
Handleiding
Je bekijkt pagina 16 van 92

16
45°
45°
K
K’
D
d
F
G
I
J
A
B
C
E
H
4
6
2
3
7
1
5
8
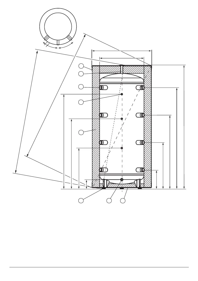
Aufbau des Pufferspeichers SV (400l;500l; 800l; 1000l)
[1] - Obener Deckel
[2] - Entlüftungsanschlussnippel (1/2”)
[3] - Anschlussnippel (6/4”)
[4] - Temperatursensoranschlussnippel (1/2”)
[5] - Thermische Isolierung
[6] - Füße
[7] - Ablaufnippel (1/2”)
[8] - Unterer Deckel
Bekijk gratis de handleiding van Kospel SV-1000.1, stel vragen en lees de antwoorden op veelvoorkomende problemen, of gebruik onze assistent om sneller informatie in de handleiding te vinden of uitleg te krijgen over specifieke functies.
Productinformatie
| Merk | Kospel |
| Model | SV-1000.1 |
| Categorie | Niet gecategoriseerd |
| Taal | Nederlands |
| Grootte | 7382 MB |
