Handleiding
Je bekijkt pagina 49 van 59

49
MONTAŻ KUCHENKI
Sprawdź, czy instalacja elektryczna jest odpowiednia do doprowadzenia 
urządzenia do stanu eksploatacyjnego. Jeśli tak nie jest, wezwij elektryka 
i hydraulika, aby dostosowali media do wymagań. Producent nie ponosi 
odpowiedzialności za szkody spowodowane czynnościami wykonywanymi 
przez osoby nieuprawnione.
OSTRZEŻENIE:  Obowiązkiem  klienta  jest  przygotowanie  miejsca,  w 
którym  urządzenie  zostanie  postawione,  oraz  przygotowanie  instalacji 
elektrycznej.
OSTRZEŻENIE:  Podczas  instalacji  urządzenia  należy  przestrzegać 
przepisów lokalnych dotyczących instalacji elektrycznych.
OSTRZEŻENIE:  Sprawdź,  czy  urządzenia  nie  ma  żadnych  uszkodzeń 
przed  jego  zainstalowaniem.  Nie  instaluj  urządzenia,  gdy  jest  ono 
uszkodzone.  Uszkodzone  urządzenia  stanowią  zagrożenie  dla  Twojego 
bezpieczeństwa.
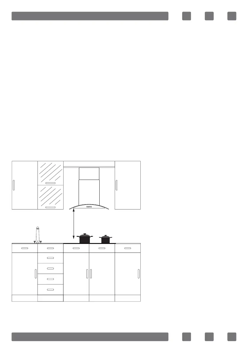
Prawidłowe Miejsce Do Montażu
Urządzenie  zostało  zaprojek-
towane z uwzględnieniem wy-
miarów  dostępnych  na  rynku 
blatów  kuchennych.  Należy 
pozostawić  bezpieczną  od-
ległość  między  urządzeniem, 
ścianami kuchni a meblami. 
Jeśli  nad  urządzeniem  jest 
przewidziany  montaż  okapu, 
należy  uwzględnić  zalecenia 
producenta  okapu  dotyczące 
wysokości montażu. (min. 65 cm)
Otwór na płytę kuchenną powi-
nien  być  wycięty  pod  jej  wy-
miary. 
Montaż  produktu  należy  wykonywać  zgodnie  z  wymogami  określonymi  w 
normach dotyczących instalacji elektrycznych.
650 mm min.
Bekijk gratis de handleiding van Kluge KPG6010BG, stel vragen en lees de antwoorden op veelvoorkomende problemen, of gebruik onze assistent om sneller informatie in de handleiding te vinden of uitleg te krijgen over specifieke functies.
Productinformatie
| Merk | Kluge | 
| Model | KPG6010BG | 
| Categorie | Fornuis | 
| Taal | Nederlands | 
| Grootte | 2499 MB | 
Caratteristiche Prodotto
| Apparaatplaatsing | Ingebouwd | 
| Soort bediening | Draaiknop | 
| Kleur van het product | Zwart | 
| Ingebouwd display | Nee | 
| Gewicht | 14500 g | 




