Handleiding
Je bekijkt pagina 35 van 128

35
EN
PREPARATION FOR USE
Ventilation condition
The position you select for the refrigerator installation should be well-ventilated
and has less hot air. Do not locate the refrigerator near a heat source such as
cooker, and avoid it from direct sunlight, thus guaranteeing the refrigeration
effect while saving energy consumption. Do not locate the refrigerator in the
damp place, so as to prevent the refrigerator from rusting and leaking electricity.
The result of the total space of the room in which the refrigerator is installed being
divided by the refrigerant charge amount of the refrigerator shall not be less than
1 m³ (space)/8 g(refrigerant).
Note: The amount of refrigerant charged for the refrigerator can be found on the
nameplate.
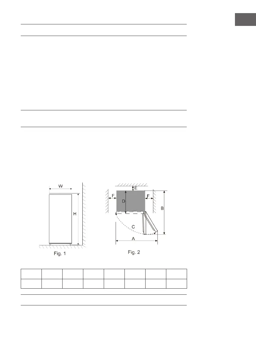
Heat dissipation space
When working, the refrigerator gives off heat to surroundings. Therefore, at least
30 mm of free space should be spared at the top side, more than 100 mm on both
sides, and above 50 mm at the back side of the refrigerator.
Dimensions in mm:
W D H A B °C E E
470 447 496 800 874 130±5 50 100
Note: Figures 1 and 2 only illustrate the space demand of the product.
Bekijk gratis de handleiding van Klarstein Irene Mini, stel vragen en lees de antwoorden op veelvoorkomende problemen, of gebruik onze assistent om sneller informatie in de handleiding te vinden of uitleg te krijgen over specifieke functies.
Productinformatie
Merk | Klarstein |
Model | Irene Mini |
Categorie | Koelkast |
Taal | Nederlands |
Grootte | 10682 MB |