Handleiding
Je bekijkt pagina 18 van 136

18
DE
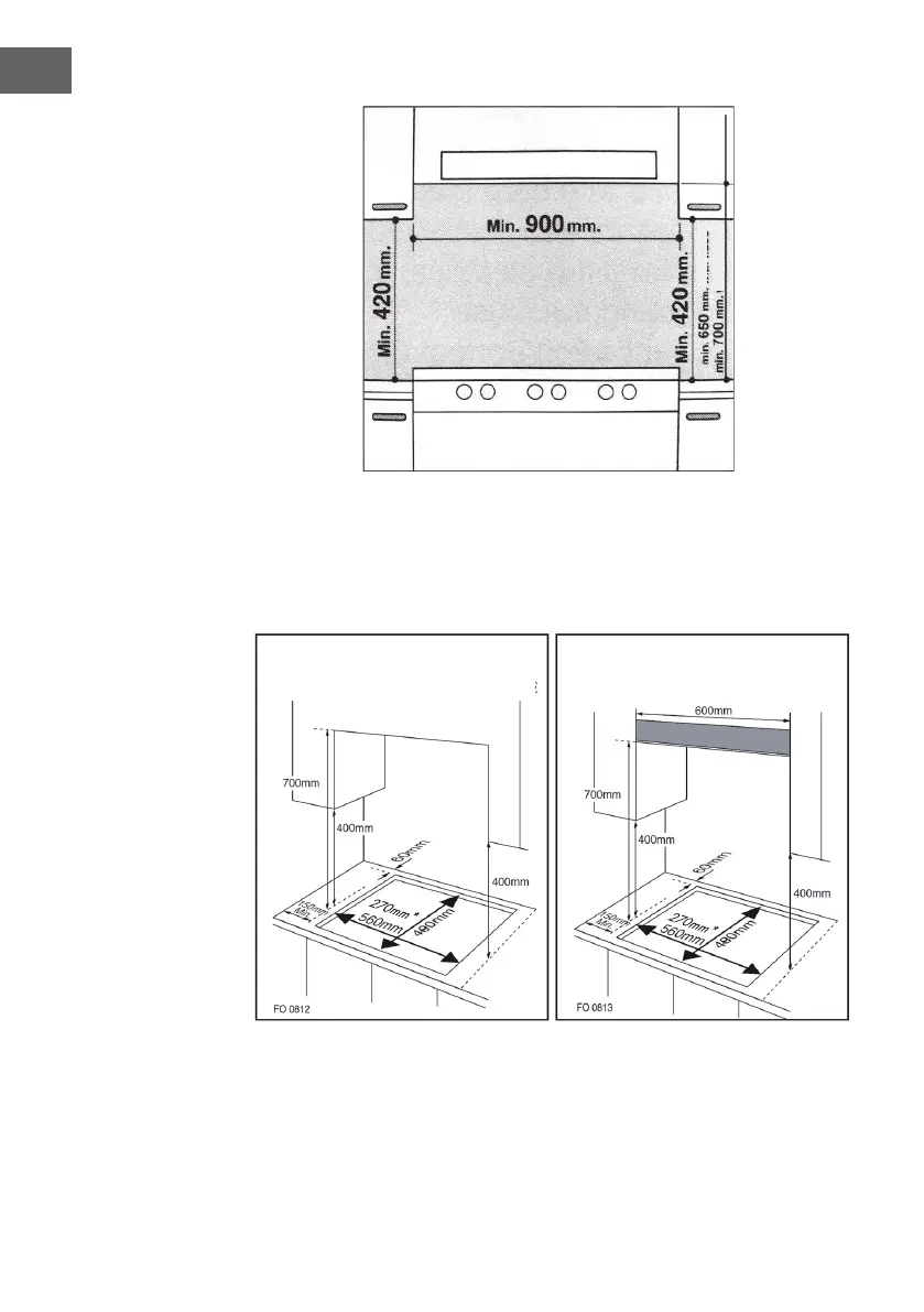
4. Der Herd sollte direkt unter einem Schrank installiert werden, wobei dieser
mindestens 700 mm von der Kochplatte entfernt sein sollte, wie in Abb. C
dargestellt.
5. Für die Platzierung des Kochfeldes an der Arbeitsplatte sind Befestigungsbeschläge
(Haken, Schrauben) vorgesehen, die 20 bis 40 mm dick sind (siehe Abb. 6).
DunstabzugshaubeDunstabzugshaube
mit Haubemit Haube
mit Haubemit Haube
Benötigte Abstände bei der Montage
ohne Dunstabzugshaube
Benötigte Abstände bei der Montage
mit Dunstabzugshaube
* Einbaumaße für das Modell mit 1 und 2 Zonen.
Bekijk gratis de handleiding van Klarstein Alchemist 4, stel vragen en lees de antwoorden op veelvoorkomende problemen, of gebruik onze assistent om sneller informatie in de handleiding te vinden of uitleg te krijgen over specifieke functies.
Productinformatie
| Merk | Klarstein |
| Model | Alchemist 4 |
| Categorie | Fornuis |
| Taal | Nederlands |
| Grootte | 13931 MB |







