KitchenAid KUIX515SPS handleiding
Handleiding
Je bekijkt pagina 39 van 48

39
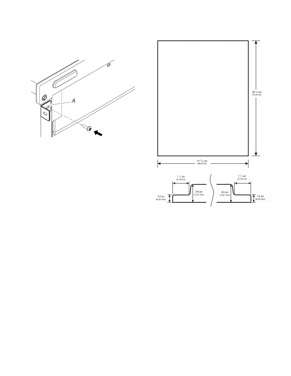
14. Fixer les supports d’armoire (inclus avec la machine à
glaçons) aux trous à l’avant de la machine à glaçons comme
illustré. Fixer les charnières d’armoire sur le côté de l’armoire
en utilisant des vis à bois.
REMARQUE : Pour l’installation du panneau de bois
personnalisé, continuer l’installation à l’étape 6 « Installation
du panneau personnalisé ».
A. Supports d’armoire
Panneau de bois personnalisé
Dimensions du panneau personnalisé
Pour l’installation d’un panneau décoratif personnalisé,
l’installateur devra fabriquer lui-même le panneau ou consulter un
ébéniste ou menuisier qualifié.
IMPORTANT :
� L’épaisseur du panneau décoratif doit être de 3/4 po (1,91 cm).
� Le poids du panneau décoratif ne doit pas dépasser 8 lb
(3,62 kg).
� Des panneaux de poids supérieur au poids recommandé
risquent d’endommager la machine à glaçons.
� Veiller à ce que le grain du bois ait la même orientation que
pour les armoires adjacentes.
� Poncer les bords du panneau pour créer un fini doux.
� Utiliser un composant d’étanchéité sur les faces et les bords
du panneau pour le protéger contre l’humidité extérieure.
Option 1– sans espaceur du côté charnière
Pour permettre un bon espacement de la porte, préparez le
panneau décoratif personnalisé en utilisant les dimensions
indiquées.
14
17
/
32
po
(36,9 cm)
1
1
/
4
po
(3,18 cm)
1/4 po
(6,35 mm)
3/4 po
(1,91 mm)
3/4 po
(1,91 mm)
1/4 po
(6,35 mm)
1
1
/
4
po
(3,18 cm)
29
1
/
2
po
(74,9 cm)
Bekijk gratis de handleiding van KitchenAid KUIX515SPS, stel vragen en lees de antwoorden op veelvoorkomende problemen, of gebruik onze assistent om sneller informatie in de handleiding te vinden of uitleg te krijgen over specifieke functies.
Productinformatie
| Merk | KitchenAid |
| Model | KUIX515SPS |
| Categorie | Niet gecategoriseerd |
| Taal | Nederlands |
| Grootte | 10211 MB |







