Handleiding
Je bekijkt pagina 19 van 52

19
KG 9325 * Turbo, KG 9357 Turbo
KG 9356 Turbo, KCG 9386 Turbo, KCG 9387
Turbo
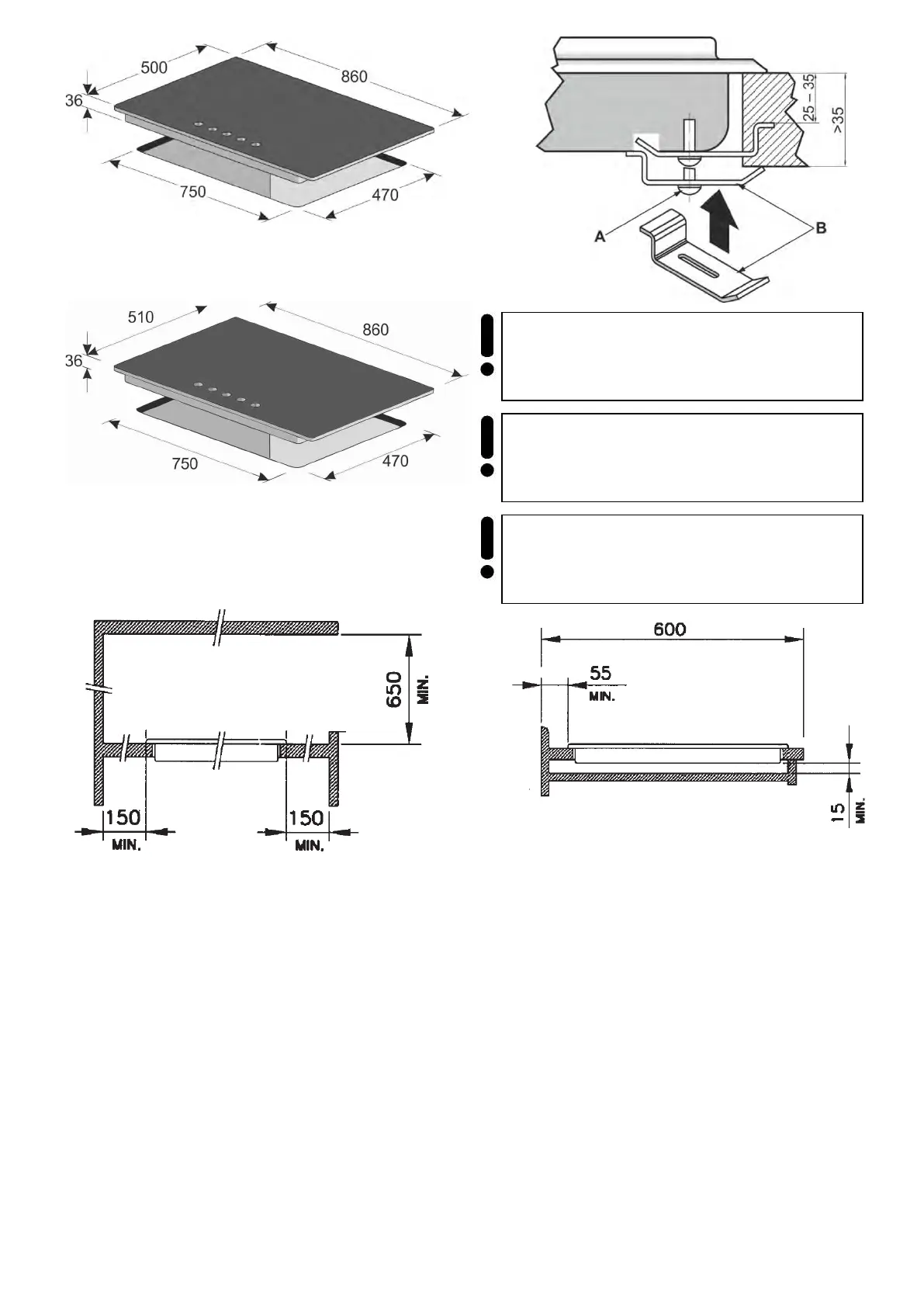
WARNING: CRYSTAL HOBS
DO NOT TIGHTEN SCREW 'A' EXCESSIVELY, ONE TURN MAX WILL BE SUFFICIENT, AFTER
CORRECTLY FITTING SHAFT 'B' INTO PLACE, AS SHOWN IN THE PICTURE. ENSURE THAT THE
SUPPORTING SURFACE IS PERFECTLY EVEN. FIT THE APPROPRIATE EXPANDED SEAL. CRYSTAL
HOBS MUST NOT BE SUBJECTED TO STRAINS CAUSED BY UNEVEN SUPPORTING SURFACES.
WICHTIG: CRYSTAL KOCHSTELLEN
DIE SCHRAUBE 'A' SOLL NICHT ZU FEST ANGEZOGEN WERDEN, MAX. NOCH UM EINE
UMDREHUNG ZIEHEN, NACHDEM DIE HALTERUNG 'B' IHRE RICHTIGE STELLUNG (S. ABBILDUNG)
ERREICHT HAT. SICHERSTELLEN, DASS DIE AUFLAGEFLÄCHE VOLLKOMMEN EBENFLÄCHIG IST.
DEN DAZU VORGESEHENEN DICHTRING AUS SCHAUMKUNSTSTOFF VERWENDEN. DIE CRYSTAL-
KOCHSTELLEN DÜRFEN MIT SPANNUNGEN INFOLGE VON UNREGELMÄSSIGKEITEN IN DER
AUFLAGEFLÄCHE NICHT BELASTET WERDEN.
ВАЖНО: СТЕКЛЯННЫЕ НАГРЕВАТЕЛЬНЫЕ ПОВЕРХНОСТИ:
ВИНТ 'A' НЕ СЛЕДУЕТ СИЛЬНО ЗАКРУЧИВАТЬ, МАКСИМАЛЬНО ЕЩЕ НА ОДИН ОБОРОТ ПОСЛЕ
ТОГО, КАК КРЕПЛЕНИЕ 'B' ЗАЙМЕТ СВОЕ ПОЛОЖЕНИЕ (см. рис.) УБЕДИТЕСЬ, ЧТО
ПОВЕРХНОСТЬ ПРИЛЕГАЕТ БЕЗУПРЕЧНО РОВНАЯ. ПРИМЕНЯЙТЕ ДЛЯ ЭТОГО
УПЛОТНИТЕЛЬНОЕ КОЛЬЦО ИЗ ЭЛАСТИЧНОГО МАТЕРИАЛА. ВО ИЗБЕЖАНИЕ СЕРЬЕЗНЫХ
ПОВРЕЖДЕНИЙ НЕ ПОДВЕРГАЙТЕ СТЕКЛЯННЫЕ НАГРЕВАТЕЛЬНЫЕ ПОВЕРХНОСТИ
ЧРЕЗМЕРНЫМ НАГРУЗКАМ.
Attention! Check again before installation the
fit sizes of the hob to avoid possible mistakes
during installation.
Achtung! Vor der Montage überprüfen Sie
noch mal die Passmaße des Kochfeldes, um
die möglichen Fehler bei der Installation zu
vermeiden.
Внимание! Перед монтажом проверьте
ещё раз посадочные размеры варочной
поверхности, чтобы избежать возможных
ошибок при установке.
Bekijk gratis de handleiding van Kaiser KG 6364 Turbo Romb, stel vragen en lees de antwoorden op veelvoorkomende problemen, of gebruik onze assistent om sneller informatie in de handleiding te vinden of uitleg te krijgen over specifieke functies.
Productinformatie
| Merk | Kaiser |
| Model | KG 6364 Turbo Romb |
| Categorie | Fornuis |
| Taal | Nederlands |
| Grootte | 9240 MB |
Caratteristiche Prodotto
| Apparaatplaatsing | Ingebouwd |
| Soort bediening | Draaiknop |
| Kleur van het product | Roestvrijstaal |
| Ingebouwd display | Nee |
| Gewicht | 16900 g |







