Juki MF-3580 handleiding
Handleiding
Je bekijkt pagina 64 van 440

− 54 −
&
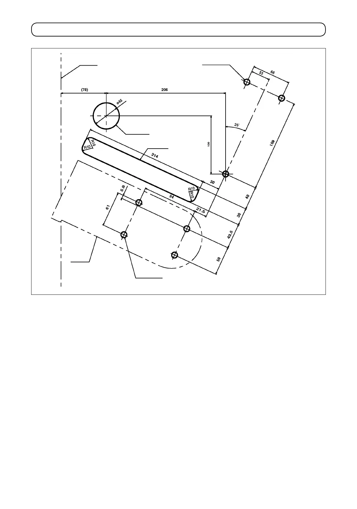
.テーブル加工図(クラッチモータ仕様のみ)
(注)JUKI 専用マウントベースは製品扱いとして型式『MT05』となります。
MT05 を使用したテーブル加工図になります。
但し MT05 には防振ゴムが 2 枚入っていますが、使用するのは 1 枚になります。
マウントベースの取付ねじ及び座金は付属として同梱されています。
・取付ねじ SM6087002 TN (M8)-4 本
・座金 WP0841600SC-4 枚
A
テーブル端面
B
クラッチモータの取付位置 (3 × ø10)
C
押え上げペダルチェーン通し穴
D
ベルト逃げ溝
E
マウントベースの取付穴 (4 × ø10)
F
マウントベース(注)
A
B
C
D
E
F
Bekijk gratis de handleiding van Juki MF-3580, stel vragen en lees de antwoorden op veelvoorkomende problemen, of gebruik onze assistent om sneller informatie in de handleiding te vinden of uitleg te krijgen over specifieke functies.
Productinformatie
| Merk | Juki |
| Model | MF-3580 |
| Categorie | Naaimachine |
| Taal | Nederlands |
| Grootte | 79694 MB |







