JennAir MTK1630P handleiding
Handleiding
Je bekijkt pagina 17 van 24

17
NOTAS:
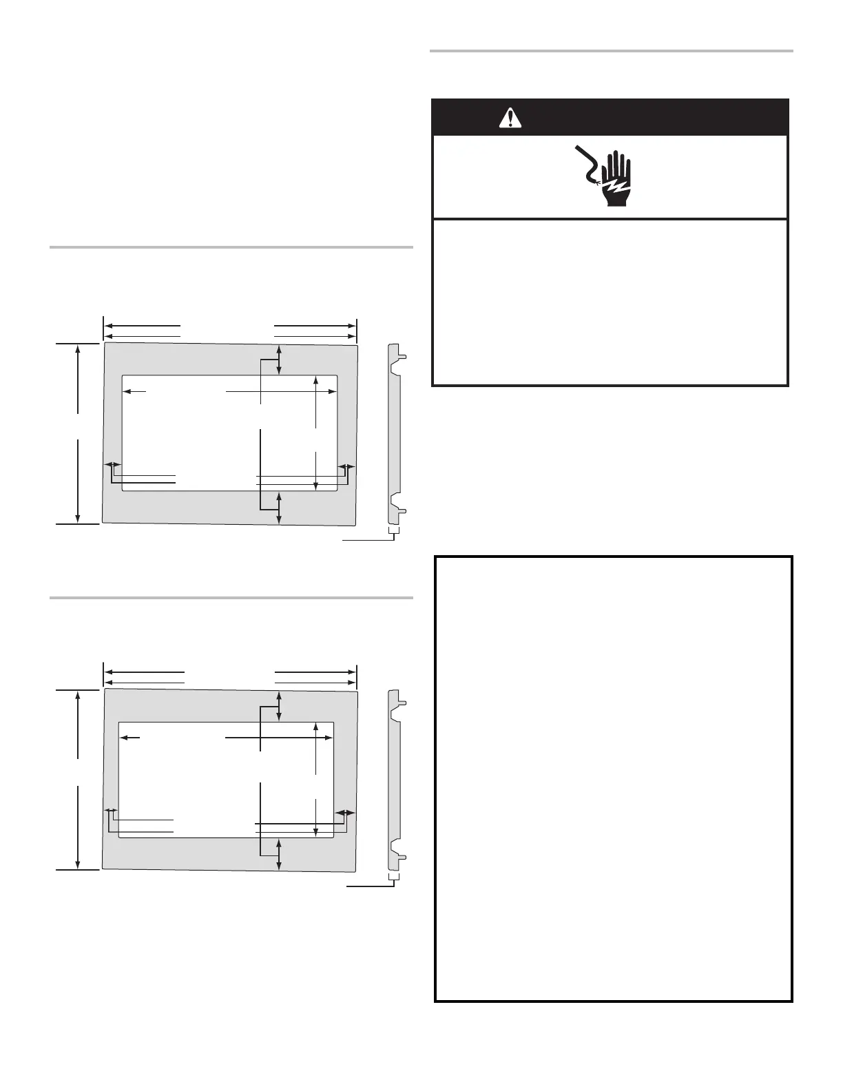
■ Los requisitos de profundidad dependen del receptáculo y
de su ubicación dentro o fuera de la región recomendada.
Véase la ilustración y el cuadro anteriores.
■ Las dimensiones de altura son críticas: 17
1
⁄
8
" (43,5 cm)
mínimo,17
3
⁄
16
" (43,7 cm) máximo.
■ La medición de anchura tiene una tolerancia de ±1/16" (2 mm).
■ La dimensión mínima de 3
15
⁄
16
" (10 cm) es desde el techo del
recorte inferior del horno hasta la base del recorte del horno
microondas.
■ El marco del juego de moldura se extiende 13/16" (2,14 cm)
por encima y por debajo de la abertura del recorte.
Dimensiones del marco del juego
de moldura-1•6 pies cúbicos•
*Juego de moldura de 27" (68,6 cm)
**Juego de moldura de 30" (76,2 cm)
Dimensiones del marco del juego de
moldura-2•2 pies cúbicos•
*Juego de moldura de 27" (68,6 cm)
**Juego de moldura de 30" (76,2 cm)
Requisitos eléctricos
Respete todas las normativas y reglamentos vigentes.
Se necesita:
■ Un suministro eléctrico de 120V, 60Hz, CA solamente, de
15 o 20 A con fusible o disyuntor.
Se recomienda:
■ Un fusible o un disyuntor retardador.
■ Un circuito separado que preste servicio solamente a este
horno microondas.
26
13
/
16
"(68,08 cm)*
2
(
5,87 cm)*
22
7
/
8
"
(55,59 cm)
11
9
/
16
"
(29,38 cm)
18
13
/
16
"
(47,78 cm)
3
9
/
16
" (9,09 cm)
29 *
3
3
/
8
" (8,64 cm)
3
3
/
4
(9,59 cm)**
5
/
16
3
/
4
"
(75,48 cm)**
1
1
/
8
" (2,92 cm)
"
"
26
13
/
16
" (68,08 cm)*
24
13
/
16
"
(63,06 cm)
13
1
/
4
"
(33,57
18
13
/
16
"
(47,78 cm)
2
5
/
8
" (6,69 cm)
29 *
2
11
/
16
" (6,85 cm)
2
13/16
5
/
16
"
3
/
4
" (75,48 cm)**
1
3
/
16
" (2,99 cm)
(5,87 cm)**
"
cm)
(2,14 cm)*
ADVERTENCIA
Peligro de Choque Eléctrico
Conecte a un contacto de pared de conexión a tierra de
3 terminales.
No quite la terminal de conexión a tierra.
No use un adaptador.
No use un cable eléctrico de extensión.
No seguir estas instrucciones puede ocasionar
la muerte, incendio o choque eléctrico.
INSTRUCCIONES PARA
LA CONEXIÓN A TIERRA
GUARDE ESTAS
INSTRUCCIONES
■
Para todos los aparatos electrodomésticos de
conexión con cable:
El horno de microondas debe estar conectado a tierra. En
caso de que se produzca un cortocircuito, la conexión a
tierra reduce el riesgo de electrocución por medio de un
alambre de escape para la corriente eléctrica. El horno de
microondas está equipado con un cable que tiene un
alambre de conexión a tierra con un enchufe para
conexión a tierra. El enchufe debe estar conectado a un
tomacorriente que está correctamente instalado y
conectado a tierra.
ADVERTENCIA: El uso incorrecto del enchufe
para la conexión a tierra puede resultar en riesgo de
electrocución. Consulte con un electricista o técnico
calificado si las instrucciones para conexión a tierra no se
entienden bien o si hay alguna duda con respecto a la
correcta conexión a tierra del horno de microondas.
No use un cable de extensión. Si el cable de suministro
eléctrico es muy corto, haga que un electricista o técnico
calificado instale un tomacorriente cerca del horno de
microondas.
Bekijk gratis de handleiding van JennAir MTK1630P, stel vragen en lees de antwoorden op veelvoorkomende problemen, of gebruik onze assistent om sneller informatie in de handleiding te vinden of uitleg te krijgen over specifieke functies.
Productinformatie
| Merk | JennAir |
| Model | MTK1630P |
| Categorie | Niet gecategoriseerd |
| Taal | Nederlands |
| Grootte | 3413 MB |

