Jackson TempStar handleiding
Handleiding
Je bekijkt pagina 11 van 84

07610-003-61-42-U
4
20 1/2” (52.1 cm)
OPENING
25 1/4”
(64.1 cm)
20 1/2” (52.1 cm)
OPENING
25 1/4”
(64.1 cm)
2 1/2” (6.4 cm)
4” (10.2 cm)
MINIMUM
4” (10.2 cm)
MINIMUM
2 1/2”
(6.4 cm)
3/4” (1.9 cm)
20 1/2”
(52.1 cm)
1 1/2” (3.81 cm) ROLL
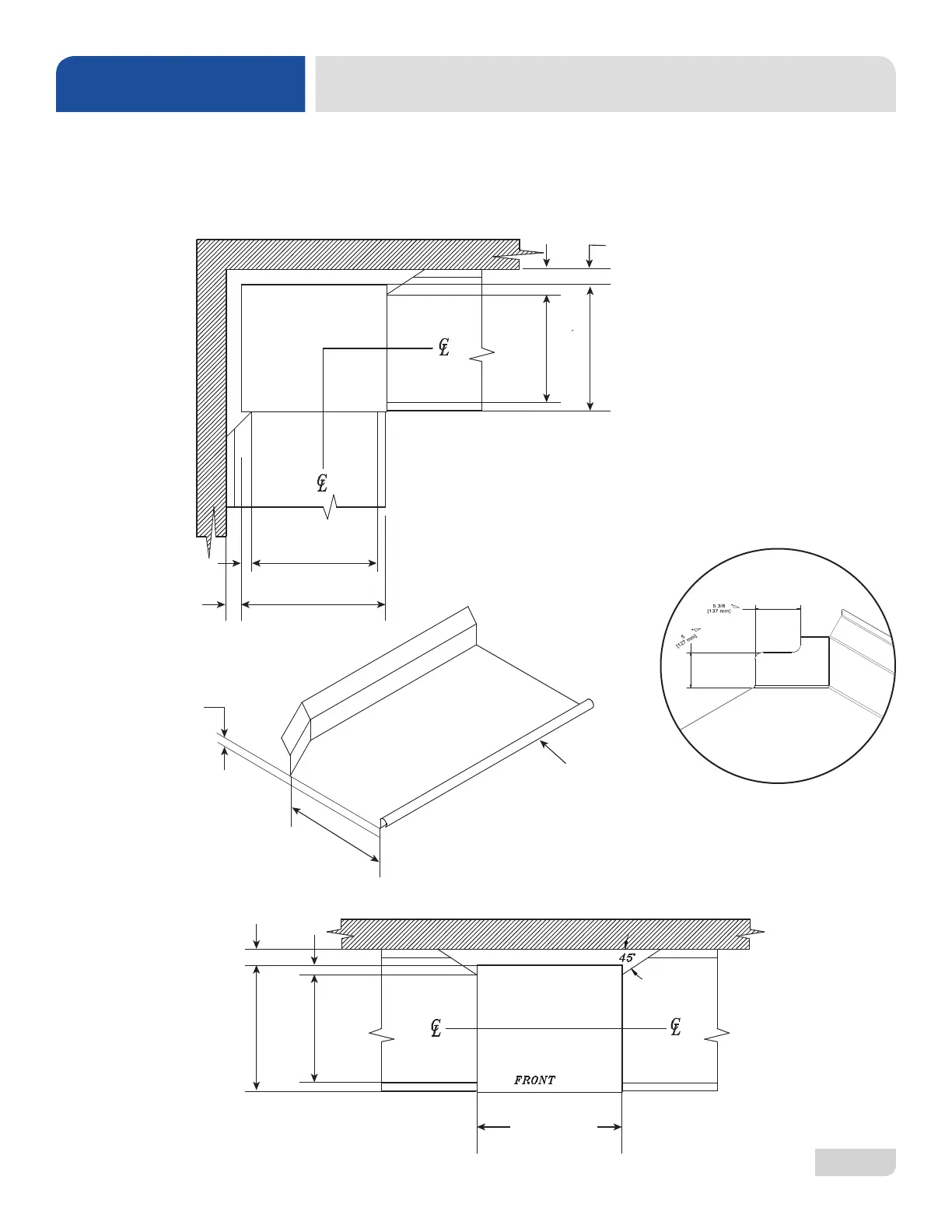
TABLE DIMENSIONS
CONNECTION TO DISHMACHINE
TABLE DIMENSIONS
CORNER INSTALLATION
4” (10.2 cm)
MINIMUM
2 1/2”
(6.4 cm)
25 1/4”
(64.1 cm)
20 1/2” (52.1 cm)
OPENING
25 1/4” (64.1 cm)
TABLE DIMENSIONS
STRAIGHT THROUGH INSTALLATION
NOTE: Remove the front dress panel from the dishmachine if mounting the dishmachine in a corner
installation with side tables. Corner installation will trap the panel, making it difcult to remove.
TABLE DIMENSIONS
SPECIFICATIONS
-
NOTCH DIMENSIONS
Bekijk gratis de handleiding van Jackson TempStar, stel vragen en lees de antwoorden op veelvoorkomende problemen, of gebruik onze assistent om sneller informatie in de handleiding te vinden of uitleg te krijgen over specifieke functies.
Productinformatie
| Merk | Jackson |
| Model | TempStar |
| Categorie | Vaatwasser |
| Taal | Nederlands |
| Grootte | 12354 MB |







