Jackson TempStar HH handleiding
Handleiding
Je bekijkt pagina 12 van 75

Tempstar HH Series Technical Manual 7610-002-23-32
Issued: 09/14/2007 Revised: N/A
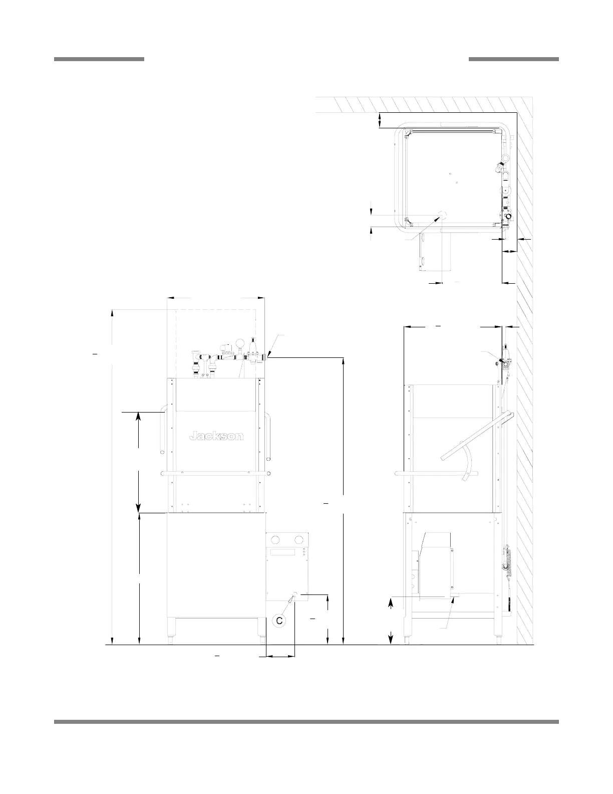
SECTION 1: SPECIFICATION INFORMATION
TEMPSTAR HH DIMENSIONS (SIDE MOUNT CONTROL BOX)
5
34 [861mm]
7
1
2
[190mm]
12
3
4
[327mm]
73
3
4
[1876mm]
A
25 [637mm]
25
1
4
[639mm]
B
1 [27mm]
A
3 [76mm]
4 [101mm]
4 [102mm]
3 [77mm]
15
1
4
[388mm]
86
1
4
[2190mm]
LEGEND
A - DRAIN 1 1/2" IPS
B - WATER INLET 3/4" IPS
C - ELECTRICAL CONNECTION
All dimensions are in inches. All vertical
dimensions are +/- 1/2" due to adjustable
bullet feet.
B
12 1/4
[310mm]
27
[687mm]
Bekijk gratis de handleiding van Jackson TempStar HH, stel vragen en lees de antwoorden op veelvoorkomende problemen, of gebruik onze assistent om sneller informatie in de handleiding te vinden of uitleg te krijgen over specifieke functies.
Productinformatie
| Merk | Jackson |
| Model | TempStar HH |
| Categorie | Vaatwasser |
| Taal | Nederlands |
| Grootte | 6618 MB |







