Jackson RackStar 44 handleiding
Handleiding
Je bekijkt pagina 10 van 80

3
07610-004-33-05-B
SPECIFICATIONS
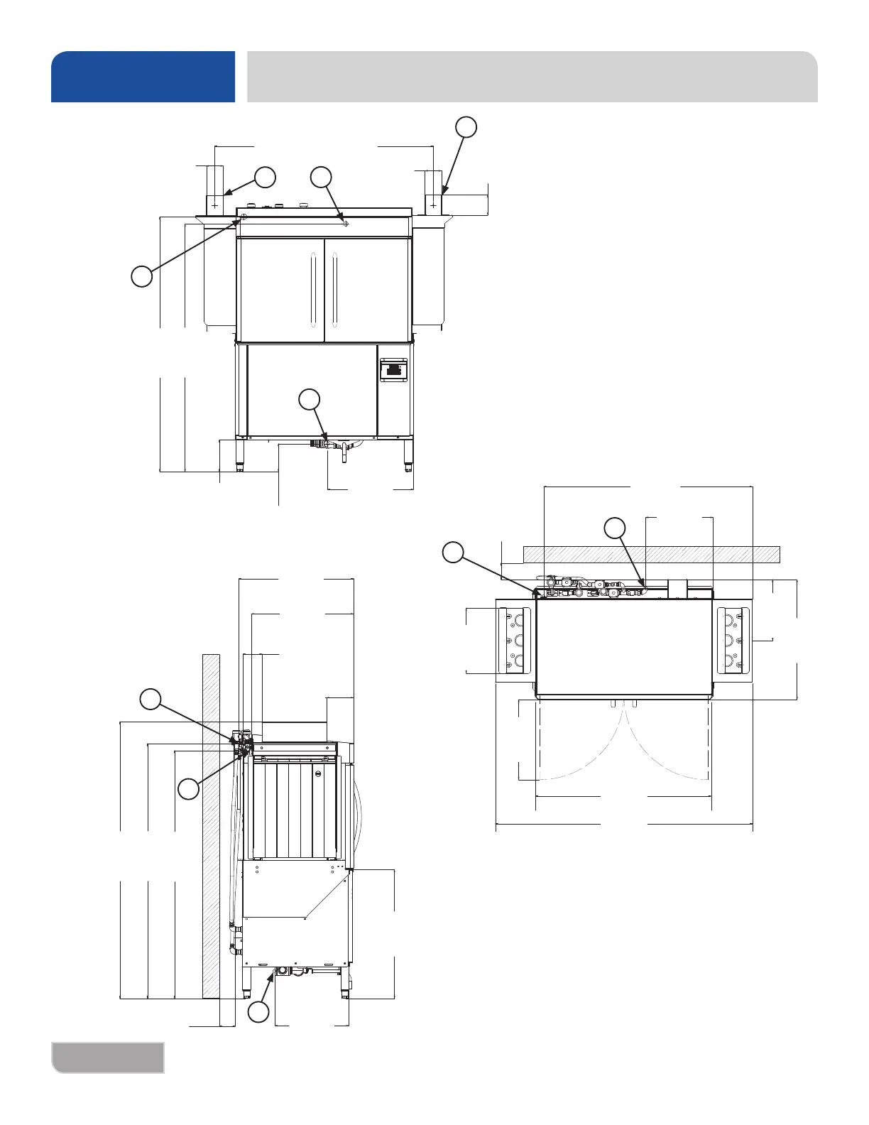
44" MACHINE DIMENSIONS
44" RIGHT-TO-LEFT
1. Electrical Connection
(Provided on both sides of unit)
2. Water Inlet
(1/2" NPT 180 °F)
3. Drain Connection
(1 1/2" NPT)
4. Vent Connections
(Including Dampers)
All dimensions from the oor can be increased
1 3/4" using the machine’s adjustable feet.
1. Electrical Connection
(Provided on both sides of unit)
2. Water Inlet
(1/2" NPT 180 °F)
3. Drain Connection
(1 1/2" NPT)
4. Vent Connections
(Including Dampers)
5”
[1
2
7
.
0
m
m
]
8”
[
2
0
3
.2
m
m
]
4"
[101.6 mm]
4"
[101.6 mm]
ADJUSTABLE FROM 51 1/2" TO 54"
[1308.1 mm TO 1371.6 mm]
21”
[533.4 mm]
7”
[177.8 mm]
6
3”
[1
6
0
0
.
2
m
m
]
6
1”
[1
5
4
9
.
4
m
m
]
3
4
1
2
4
6
9”
[1
7
5
2
.6
m
m
]
4" MIN
[101.6 mm]
3
2”
[8
1
2
.
8
m
m
]
6
3”
[1
6
0
0
.
2
m
m
]
6
1”
[1
5
4
9
.
4
m
m
]
5”
[127.0 mm]
7”
[177.8 mm]
18”
[457.2 mm]
28”
[711.2 mm]
25”
[635.0 mm]
3
1
2
2
0”
[5
0
8
.
0
m
m
]
17”
[431.8 mm]
52”
[1320.8 mm]
4" MIN
[101.6 mm]
1
5”
[
3
8
1
.0
m
m
]
3
0”
[
7
6
2
.0
m
m
]
1
6”
[4
0
6
.
4
m
m
]
1
2
64"
[1625.6 mm]
44"
[1117.6 mm]
Bekijk gratis de handleiding van Jackson RackStar 44, stel vragen en lees de antwoorden op veelvoorkomende problemen, of gebruik onze assistent om sneller informatie in de handleiding te vinden of uitleg te krijgen over specifieke functies.
Productinformatie
| Merk | Jackson |
| Model | RackStar 44 |
| Categorie | Vaatwasser |
| Taal | Nederlands |
| Grootte | 11878 MB |







