Jackson NXP-HTD handleiding
Handleiding
Je bekijkt pagina 9 van 56

07610-004-91-86-D
2
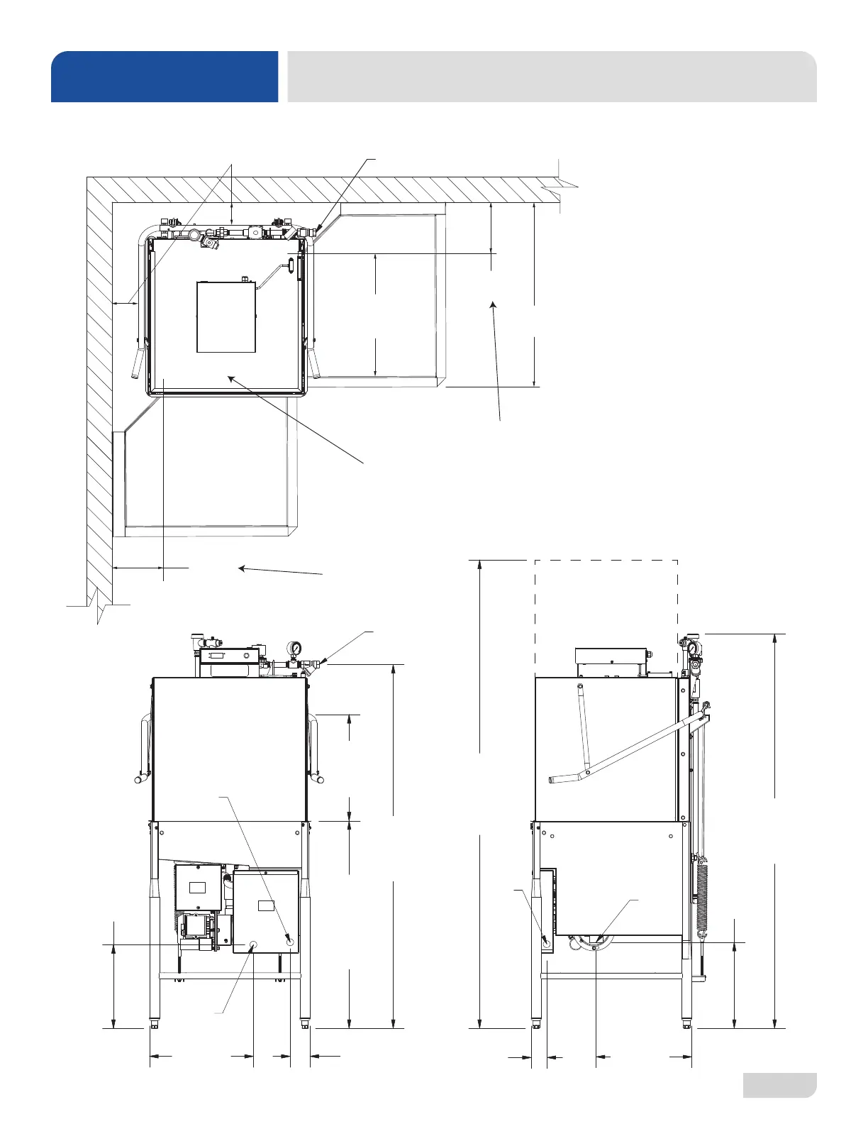
LEGEND
A - Water Inlet (1/2” NPT)
B - Electrical Connection Point
C - Drain (1 1/2” NPT)
59
[1499 mm]
34
[864 mm]
TABLE HEIGHT
13 1/4
[337 mm]
3 1/4
[81 mm]
16 7/8
[428 mm]
A
B
C
15 1/2
[394 mm]
2 1/8
[55 mm]
64
[1625 mm]
76
[1930 mm]
DOOR OPEN
14
[355 mm]
C
B
17 1/4
[438 mm]
CLEARANCE
30
(762 mm)
8 1/4
(210 mm)
20 1/2”
(521 mm)
OPENING
4 (102 mm) MIN
ALIGN WITH TABLE -
DISTANCE CAN VARY
8 1/4
(210 mm)
DISTANCE FROM
WALL TO REAR
RACK RAIL
DISTANCE FROM
WALL TO LEFT
RACK RAIL
CONTROL PANEL
A
All dimensions from the floor
can be increased 1 1/8” using
the machine’s adjustable feet.
SPECIFICATIONS
DIMENSIONS
Bekijk gratis de handleiding van Jackson NXP-HTD, stel vragen en lees de antwoorden op veelvoorkomende problemen, of gebruik onze assistent om sneller informatie in de handleiding te vinden of uitleg te krijgen over specifieke functies.
Productinformatie
| Merk | Jackson |
| Model | NXP-HTD |
| Categorie | Vaatwasser |
| Taal | Nederlands |
| Grootte | 7060 MB |







