Jackson FlightStar handleiding
Handleiding
Je bekijkt pagina 12 van 90

07610-004-81-74-A
4
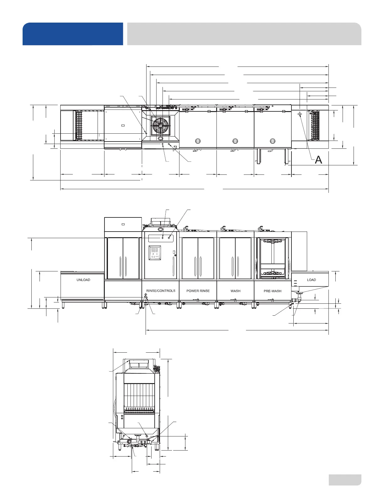
STEAM DIMENSIONS
SPECIFICATIONS
RIGHT-TO-LEFT
G
G
HIGH
ALTO
HAUT
LOW
BAJO
BAS
DELIME
DESCALCIFICACIÓN
DETARTRER
POWER
ENERGÍA
INTERRUPTEUR
SPEED
VELOCIDAD
VITESSE
TURBO RINSE
ENJUAGUE TURBO
RINÇAGE TURBO
WASH
LAVADO
LAVER
STOP
PARADA
ARRET
START
ENCENDIDO
MARCHE
150°F MIN
66°C MIN
165°F MIN
74°C MIN
180°F MIN
82°C MIN
B
C
B
C
BLOWER/DRYER
D E
A
D
D
E
LEGEND
A - 2” NPT Machine Drain Connection
(Floor drain - optional to either end)
B - Wash/Power Rinse Electrical Connection
C - Blower/Controls/Pre-wash Electrical Connection
D - 3/4” NPT Incoming Water Connection
E - Vent Connection (Adjustable)
F - 3/4” NPT Machine Steam Inlet
G - 3/4” NPT Condensate Return
2-point electrical connection shown.
All dimensions from the floor can be
increased 2” using the machine’s
adjustable feet.
F
A
F
1’-9”
[533 mm]
3’-0”
[914 mm]
3’-0”
[914 mm]
3’-0”
[914 mm]
3’-0”
[914 mm]
3’-0”
[914 mm]
3’-0”
[914 mm]
3’-6”
[1067 mm]
21’-6”
[6553 mm]
2’-5 1/2”
[749 mm]
3’-6”
[1067 mm]
4’-10”
[1473 mm]
DOORS OPEN
1’-2 1/2”
[368 mm]
3’-1 1/2”
[953 mm]
6’-0”
[1829 mm]
CONTROL CABINET
DOOR OPEN
5’-8”
[1727 mm]
3’-0”
[914 mm]
10 1/2”
[267 mm]
6”
[152 mm]
MIN CLEARANCE
3’-8”
[1118 mm]
1’-3 1/2”
[394 mm]
2’-3”
[686 mm]
1’-3/8”
[314 mm]
8 1/2”
[216 mm]
1’-1 5/8”
[346 mm]
14’-9”
[4496 mm]
2’-9 3/4”
[857 mm]
8”
[203 mm]
4 7/8”
[124 mm]
3’-0”
[914 mm]
7’-3 3/4”
[2229 mm]
14’-9 1/2”
[4509 mm]
14’-2 1/4”
[4324 mm]
13’-8”
[4166 mm]
13’-1 1/2”
[4001 mm]
12’-7”
[3835 mm]
2’-1 1/2”
[648 mm]
Bekijk gratis de handleiding van Jackson FlightStar, stel vragen en lees de antwoorden op veelvoorkomende problemen, of gebruik onze assistent om sneller informatie in de handleiding te vinden of uitleg te krijgen over specifieke functies.
Productinformatie
| Merk | Jackson |
| Model | FlightStar |
| Categorie | Vaatwasser |
| Taal | Nederlands |
| Grootte | 12592 MB |







