Jackson Conserver XL2 handleiding
Handleiding
Je bekijkt pagina 11 van 64

07610-002-10-23-T
4
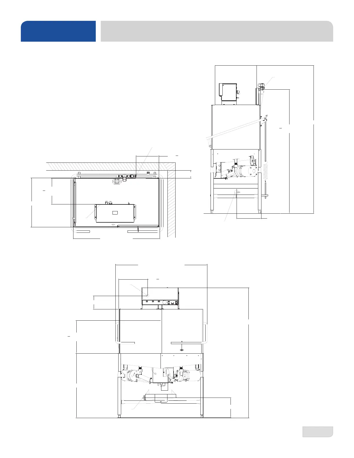
SPECIFICATIONS
XL2-CMR DIMENSIONS
LEGEND:
A - Electrical connection
B - Water inlet 1/2" I.P.S
C - Drain connection 2" I.P.S
All vertical dimensions are +/- 1/2" from floor
due to adjustable bullet feet.
78 [1981mm]
13 [330mm]
C
B
65
1
4
[1658mm]
44 [1118mm]
[635mm]
4 [102mm]
B
A
13
1
4
[337mm]
11
1
2
[295mm]
68 1/2 [1740mm]
6 3/4 [171mm]
15
1
4
[387mm]
11 1/4 [283mm]
34 [864mm]
17
1
4
[438mm]
MAXIMUM DISH CLEARANCE
C
48 1/2 [1232mm]
A
Conserver XL2 Manual • 07610-002-10-23-Q
Issued: 11-28-2007 Revised: 04-19-16
SECTION 1: SPECIFICATION INFORMATION
CONSERVER XL2-CMR DIMENSIONS
5
All dimensions from the oor can be increased
1/2" using the machine's adjustable feet.
NPT
NPT
Bekijk gratis de handleiding van Jackson Conserver XL2, stel vragen en lees de antwoorden op veelvoorkomende problemen, of gebruik onze assistent om sneller informatie in de handleiding te vinden of uitleg te krijgen over specifieke functies.
Productinformatie
| Merk | Jackson |
| Model | Conserver XL2 |
| Categorie | Vaatwasser |
| Taal | Nederlands |
| Grootte | 9470 MB |







