Jackson Conserver XL-E handleiding

64 pagina's
PDF beschikbaar

Handleiding

Je bekijkt pagina 62 van 64
07610-003-92-84-P
56
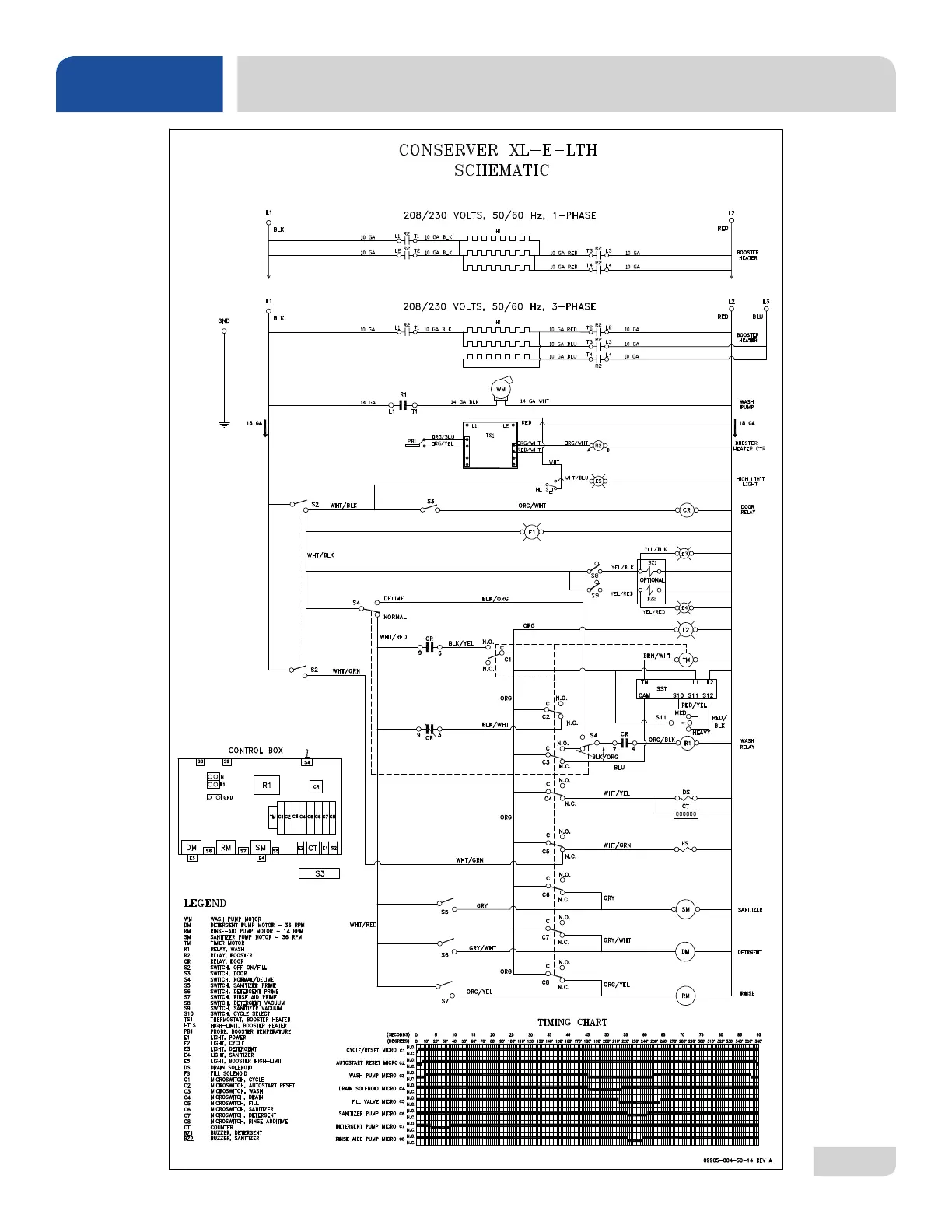
SCHEMATICS
XL-E-LTH 208/230 V, 60 HZ, 1/3 PHASE

Bekijk gratis de handleiding van Jackson Conserver XL-E, stel vragen en lees de antwoorden op veelvoorkomende problemen, of gebruik onze assistent om sneller informatie in de handleiding te vinden of uitleg te krijgen over specifieke functies.

Productinformatie

MerkJackson
ModelConserver XL-E
CategorieVaatwasser
TaalNederlands
Grootte9956 MB