Jackson Conserver XL-E handleiding
Handleiding
Je bekijkt pagina 22 van 64

07610-003-92-84-P
16
Rack rail removed and
repositioned for a
corner operation.
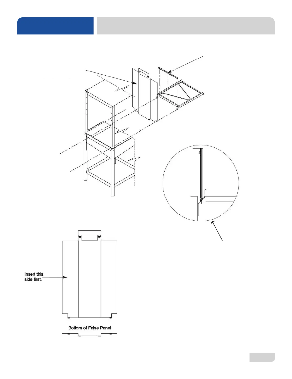
XL HH FALSE PANEL INSTRUCTIONS
INSTALLATION
False Panel Weldment
05700-002-52-54
False Panel Kit
05700-002-52-89
False panel positioned in unit.
The false panel will mount inside of
the dishmachine.
1. Remove the rack assembly from the dishmachine.
2. Position the panel in the dishmachine on the side to be closed.
3. Hold the panel against the side of the dishmachine and push
upward.
4. The panel will clip in at the top, inside of the unit.
5. The holes in the false panel will line up with the rack assembly
holes.
6. Reinstall the screws for the rack assembly which will secure
the false panel to the unit.
7. Reassemble the rack track in an "L" shape for a corner operation.
Bekijk gratis de handleiding van Jackson Conserver XL-E, stel vragen en lees de antwoorden op veelvoorkomende problemen, of gebruik onze assistent om sneller informatie in de handleiding te vinden of uitleg te krijgen over specifieke functies.
Productinformatie
| Merk | Jackson |
| Model | Conserver XL-E |
| Categorie | Vaatwasser |
| Taal | Nederlands |
| Grootte | 9956 MB |







