Jackson AJX-66L handleiding
Handleiding
Je bekijkt pagina 21 van 110

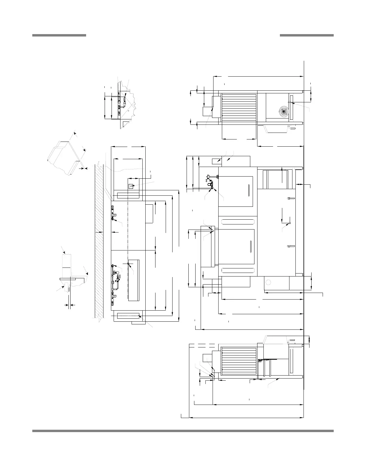
C
Right Side
34 [864mm]
8
1
2
[217mm]
21 [533mm]
25 [635mm]
12 [307mm]
25 [635mm]
B
Dish Clearance
Drive
Unit
Left Side
66
1
2
[1692mm]
3 [79mm]
1
2
[15mm]
84 [2134mm]
A
G
F
With Doors Open
Rear of
Machine
6 [152mm]
Right to Left
Legend
A - Machine water inlet 3/4" NPT, 180°F
Hi-temp,140°F Low-temp minimum
B - Electrical connection
C - Drain connection 1-1/2" NPT
D - Vent collar - Optional
E - Vent cowl standard
F - Prewash water inlet 3/4" NPT
110°F-140°F
G - Cold water thermostat plumbing
connection 3/4" NPT - Optional
Note: All vertical dimensions are +/- 1/2"
from floor due to adjustable bullet feet.
1 [25mm]
66
1
4
[1684mm]
Floor Sink Or Drain
With 3" (76 mm)
Minimum Drain Line
25 [635mm]
4 1/2 [114mm]
8
1
4
[210mm]
21 [533mm]
B
A
F
Table to Table
Overall
Prewash Plan View Section
with Cold Water Thermostat
16
3
4
[425mm]
16
1
4
[415mm]
F
G
88 [2238mm]
3/4" (19 mm)
Table Turndown
Flange 3/4" Max
21" (533 mm)
Rack Rail Height
Above Dishtable
1/4" (6mm) - 5/16" (8mm)
Rack Rail
Tub
Table
Use Silicone Sealer
Between Table and
Lip of Machine to
Prevent Leakage
Recommended Table Fabrication Note: Tub Will Accept
a Table Flange
Up to 24 7/8"
(632 mm)
4" (102 mm) wide x 16" (406 mm)
long cutout in Vent Cowl/Splash
Shield. Shipped with Cover Plate.
44 [1121mm]
Base Unit
Prewash
36 [914mm]
96 [2441mm]
80 [2035mm]
Front View
75
1
2
[1921mm]
62
1
2
[1590mm]
29 [734mm]
6 [152mm]
10 [254mm]
A
B
41 [1042mm]
C
23
1
2
[598mm]
24 [611mm]
G
42 [1069mm]
4 [102mm]
Drive
Unit
F
D
E
8 [203mm]
41 [1041mm]
7 [178mm]
60
1
4
[1529mm]
SECTION 1: SPECIFICATION INFORMATION
AJX-80 ELECTRIC - RIGHT TO LEFT
14
AJX-44 & AJX-54 Series Technical Manual 7610-003-60-98
Issued: 01-19-2009 Revised: 01-30-2009
Bekijk gratis de handleiding van Jackson AJX-66L, stel vragen en lees de antwoorden op veelvoorkomende problemen, of gebruik onze assistent om sneller informatie in de handleiding te vinden of uitleg te krijgen over specifieke functies.
Productinformatie
| Merk | Jackson |
| Model | AJX-66L |
| Categorie | Vaatwasser |
| Taal | Nederlands |
| Grootte | 10686 MB |







