Jackson AJX-66L handleiding
Handleiding
Je bekijkt pagina 18 van 110

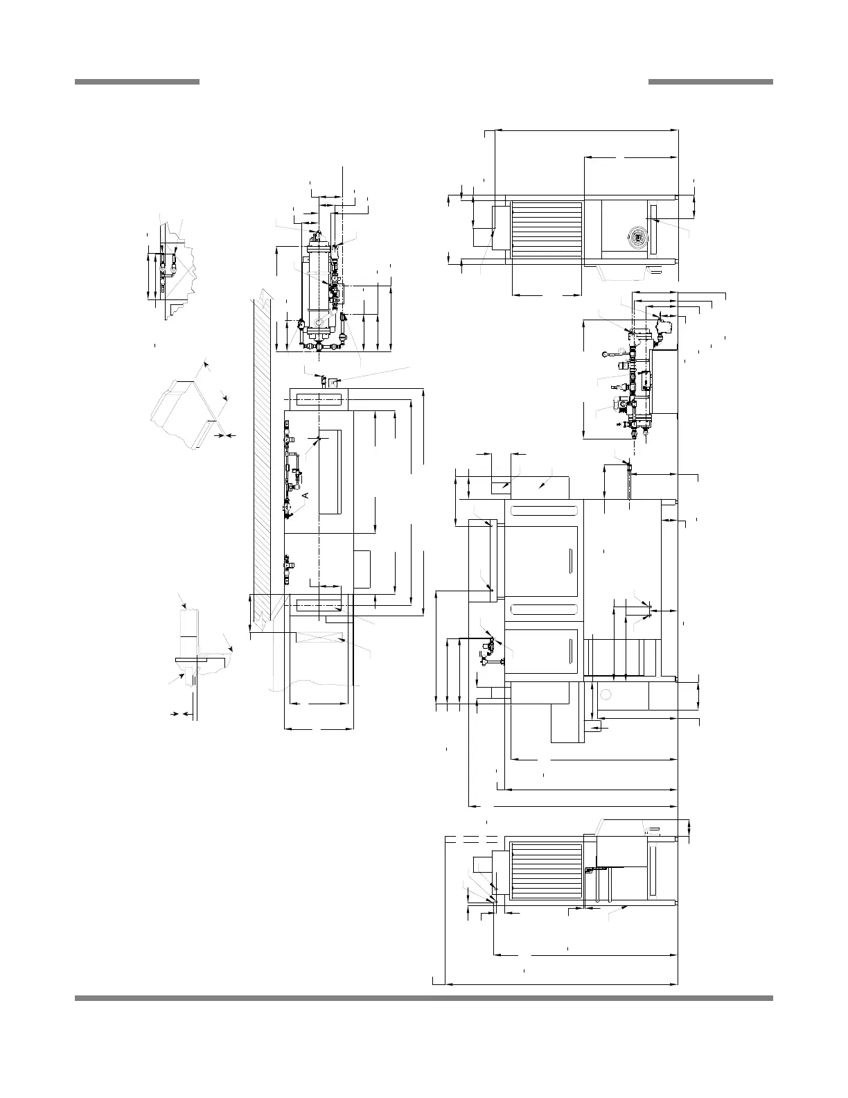
Drive
Unit
Left Side
Drive
Unit
66
1
2
[1692mm]
3 [79mm]
1
2
[15mm]
84 [2134mm]
75
1
2
[1919mm]
60
1
4
[1530mm]
29 [737mm]
24 [610mm]
10
1
4
[260mm]
17
1
2
[445mm]
6 [152mm]
10 [254mm]
7 [178mm]
D
E
A
C
C
O
B
4 [102mm]
8 [206mm]
G
24 [609mm]
41 [1040mm]
N
A
18 [457mm]
27 [687mm]
O
N
23
1
2
[598mm]
Front View
Right Side
34 [864mm]
8
1
2
[217mm]
21 [533mm]
25 [635mm]
12 [307mm]
25 [635mm]
B
Dish Clearance
With Doors Open
Rear of
Machine
14 [356mm]
Minimum
10" High
Table
Backsplash
Scrap
Trough
Table to Table
Overall
Prewash Plan View Section
with Cold Water Thermostat
16
3
4
[425mm]
16
1
4
[415mm]
N
O
6 [152mm]
4" (102 mm) wide x 16" (406 mm)
long cutout in Vent Cowl/Splash
Shield. Shipped with Cover Plate.
Minimum
Scrap
Trough
14 [355mm]
Floor Sink Or Drain
With 3" (76 mm)
Minimum Drain Line
25 [635mm]
21 [533mm]
8 [203mm]
82 [2086mm]
74 [1883mm]
66 [1679mm]
3/4" (19 mm)
Table Turndown
Flange 3/4" Max
21" (533 mm)
Rack Rail Height
Above Dishtable
1/4" (6mm) - 5/16" (8mm)
Rack Rail
Tub
Table
Use Silicone Sealer
Between Table and
Lip of Machine to
Prevent Leakage
Recommended Table Fabrication
Note: Tub Will Accept
a Table Flange
Up to 24 7/8"
(632 mm)
Left to Right
Legend
A - Machine water inlet 3/4" NPT 180°F
Hi-temp,140°F Low-temp minimum
B - Electrical connection
C - Drain connection 1-1/2" NPT
D - Vent collar - Optional
E - Vent cowl standard
F - 3/4" NPT Steam connection
G - 3/4" NPT Condensate return
H - Steam electrical connection
J - 1" NPT Steam connection
K - 3/4" Condensate connection
L - 3/4" NPT Incoming 110°F water
connection
M - 3/4" NPT 180°F water to dishmachine.
N - Prewash water inlet 3/4" NPT
110°F-140°F
O - Cold water thermostat plumbing
connection 3/4" NPT - Optional
Note: All vertical dimensions are +/- 1/2"
from floor due to adjustable bullet feet.
B
38 [966mm]
11
1
4
[285mm]
13
1
2
[345mm]
23
3
4
[604mm]
13
1
2
[345mm]
4
1
4
[110mm]
5
3
4
[148mm]
8
1
2
[218mm]
6
1
4
[159mm]
M
K
L
J
12
1
2
[316mm]
F
16
3
8
[417mm]
15
3
4
[400mm]
11
5
8
[295mm]
6
3
8
[162mm]
M
J
H
L
43 [1092mm]
62
1
2
[1590mm]
1 [25mm]
66
1
4
[1684mm]
F
H
44 [1121mm]22 [559mm]
Base Unit
Prewash
SECTION 1: SPECIFICATION INFORMATION
AJX-66 STEAM - LEFT TO RIGHT
11
AJX-44 & AJX-54 Series Technical Manual 7610-003-60-98
Issued: 01-19-2009 Revised: 01-30-2009
Bekijk gratis de handleiding van Jackson AJX-66L, stel vragen en lees de antwoorden op veelvoorkomende problemen, of gebruik onze assistent om sneller informatie in de handleiding te vinden of uitleg te krijgen over specifieke functies.
Productinformatie
| Merk | Jackson |
| Model | AJX-66L |
| Categorie | Vaatwasser |
| Taal | Nederlands |
| Grootte | 10686 MB |







