Jackson AJX-66L handleiding
Handleiding
Je bekijkt pagina 14 van 110

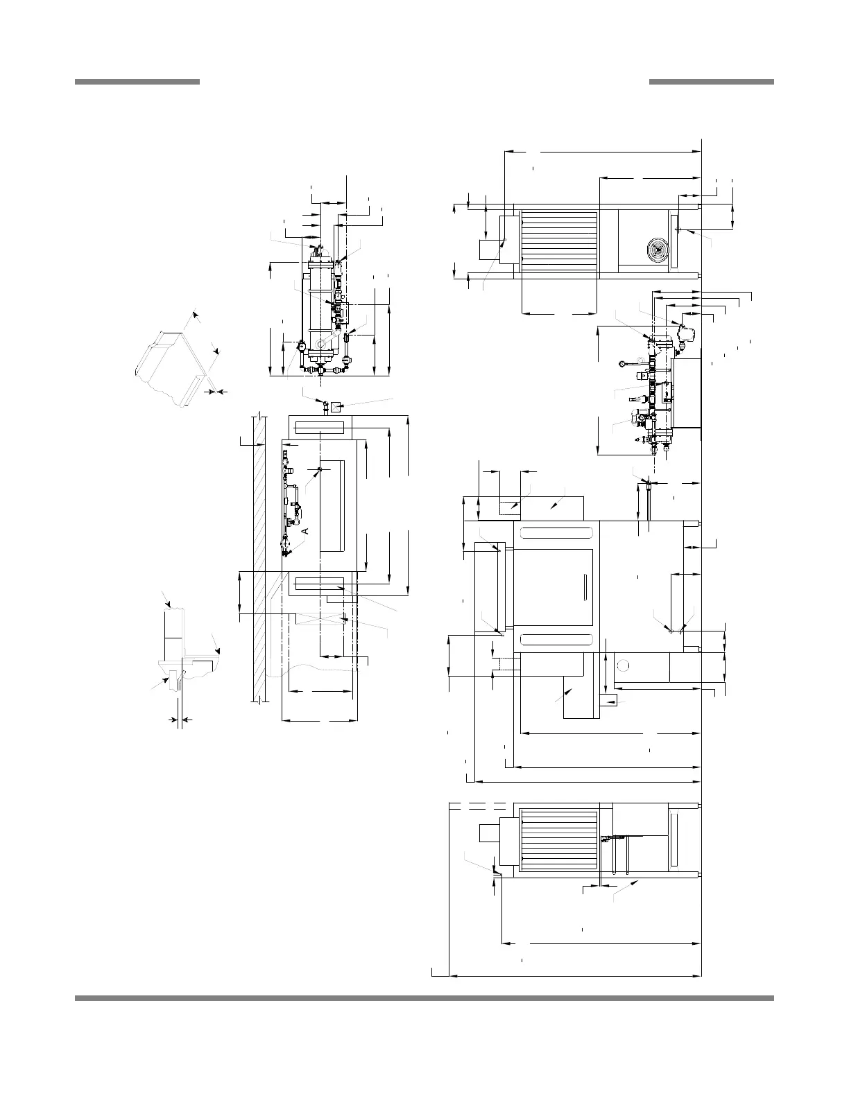
Left to Right
Drive
Unit
Left Side
Drive
Unit
Front View
Right Side
3/4" (19 mm)
Table Turndown
Flange 3/4" Max
21" (533 mm)
Rack Rail Height
Above Dishtable
1/4" (6mm) - 5/16" (8mm)
Rack Rail
Tub
Table
Use Silicone Sealer
Between Table and
Lip of Machine to
Prevent Leakage
Recommended Table Fabrication
Note: Tub Will Accept
a Table Flange
Up to 24 7/8"
(632 mm)
1
2
[15mm]
84 [2134mm]
75
1
2
[1919mm]
62
1
2
[1590mm]
34 [864mm]
29 [737mm]
6 [152mm]
8
1
2
[218mm]
21 [533mm]
25 [635mm]
12 [307mm]
25 [635mm]
10 [254mm]
7 [178mm]
D
E
A
C
B
18
1
2
[467mm]
4 [102mm]
Table to Table
Overall
With Doors Open
Rear of
Machine
Dish Clearance
14 [356mm]
Minimum
10" High
Table
Backsplash
Scrap
Trough
7
1
2
[190mm]
C
B
Legend
A - Machine water inlet 3/4" NPT 180°F
Hi-temp,140°F Low-temp minimum
B - Electrical connection
C - Drain connection 1-1/2" NPT
D - Vent collar - Optional
E - Vent cowl standard
F - 3/4" NPT Steam connection
G - 3/4" NPT Condensate return
H - Steam electrical connection
J - 1" NPT Steam connection
K - 3/4" Condensate connection
L - 3/4" NPT Incoming 110°F water
connection
M - 3/4" NPT 180°F water to dishmachine.
Note: All vertical dimensions are +/- 1/2"
from floor due to adjustable bullet feet.
60
1
4
[1530mm]
8 [204mm]
7 [178mm]
10 [254mm]
12
1
2
[316mm]
G
F
17
1
2
[445mm]
4" (102 mm) wide x 16" (406 mm)
long cutout in Vent Cowl/Splash
Shield. Shipped with Cover Plate.
Floor Sink Or Drain
With 3" (76 mm)
Minimum Drain Line
25 [637mm]
4 1/2 [114mm]
44 [1118mm]
52 [1321mm]
60 [1524mm]
8 [204mm]
14 [355mm]
Scrap
Trough
Minimum
21 [535mm]
B
1 [25mm]
66
5
8
[1692mm]
65
1
2
[1665mm]
13
5
8
[346mm]
A
6
3
8
[162mm]
11
5
8
[295mm]
15
3
4
[400mm]
16
3
8
[417mm]
43 [1092mm]
11
1
4
[285mm]
13
5
8
[345mm]
23
3
4
[604mm]
38 [966mm]
6
1
4
[159mm]
5
7
8
[148mm]
4
3
8
[110mm]
8
5
8
[218mm]
H
J
L
M
K
L
H
J
M
F
SECTION 1: SPECIFICATION INFORMATION
AJX-44 STEAM - LEFT TO RIGHT
7
AJX-44 & AJX-54 Series Technical Manual 7610-003-60-98
Issued: 01-19-2009 Revised: 01-30-2009
Bekijk gratis de handleiding van Jackson AJX-66L, stel vragen en lees de antwoorden op veelvoorkomende problemen, of gebruik onze assistent om sneller informatie in de handleiding te vinden of uitleg te krijgen over specifieke functies.
Productinformatie
| Merk | Jackson |
| Model | AJX-66L |
| Categorie | Vaatwasser |
| Taal | Nederlands |
| Grootte | 10686 MB |







