Intergas Xtend Split handleiding
Handleiding
Je bekijkt pagina 44 van 88

44
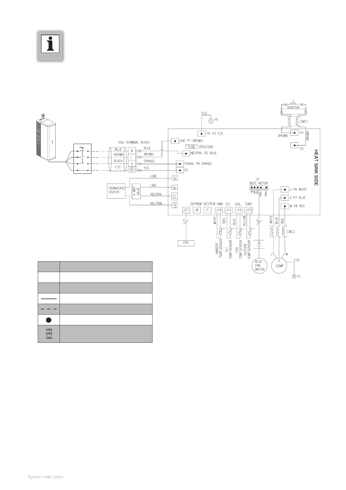
8.7.4 Electrical diagram outdoor unit
NOTES
► The wiring diagram below is for
clarification only. The actual shape of the
components may dier.
Control unit
Indoor unit
3 pole isolator switch
Key Discription
CMC Capacitor
COMP Compressor
Factory wiring
Field wiring
Wire terminals
Engaged conductors connectors
(male - female contacts)
Bekijk gratis de handleiding van Intergas Xtend Split, stel vragen en lees de antwoorden op veelvoorkomende problemen, of gebruik onze assistent om sneller informatie in de handleiding te vinden of uitleg te krijgen over specifieke functies.
Productinformatie
| Merk | Intergas |
| Model | Xtend Split |
| Categorie | Niet gecategoriseerd |
| Taal | Nederlands |
| Grootte | 11570 MB |




