Intergas Xclusive 36 handleiding
Handleiding
Je bekijkt pagina 15 van 92

15
450
277
120
120
6565120 6565 70
275
148
98h
H
=320=
50
65
95
100
160
246
6 INSTALLATION
A
E C D
B
F
A B
D E
F
Z
C
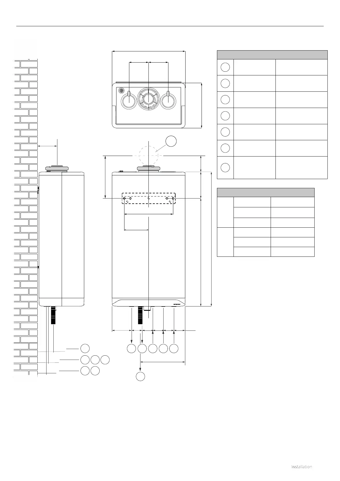
6.1 Overall dimensions of boiler including the wall bracket
6.1.1 Mounting the wall bracket
Due to the size and weight of the appliance it is not
recommended to install the boiler on a stud wall as this may
also cause noise issues.
Refer to the installation dimensions and clearances on the
boiler template supplied with this appliance.
Overall dimensions
h =
618 mm
Xclusive 24
618 mm
Xclusive 30
678 mm Xclusive 36
H =
766 mm Xclusive 24
766 mm Xclusive 30
826 mm Xclusive 36
Connections
A
Central heating
flow
22mm with isolation
valve fitted
B
Central heating
return
22mm with isolation
valve fitted
C
Gas flow
22mm with isolation
valve fitted
D
Domestic cold
water - Inlet
15mm with isolation
valve fitted
E
Domestic hot
water - Outlet
15mm with isolation
valve fitted
F
Condense
syphon outlet
Ødn25
Z
Flue / Chimney
appliance
connection
Ø60/100
(concentric, wall
terminal )
Bekijk gratis de handleiding van Intergas Xclusive 36, stel vragen en lees de antwoorden op veelvoorkomende problemen, of gebruik onze assistent om sneller informatie in de handleiding te vinden of uitleg te krijgen over specifieke functies.
Productinformatie
| Merk | Intergas |
| Model | Xclusive 36 |
| Categorie | Niet gecategoriseerd |
| Taal | Nederlands |
| Grootte | 12726 MB |




