Intergas Rapid 32 Plus handleiding

68 pagina's
PDF beschikbaar

Handleiding

Je bekijkt pagina 66 van 68
Intergas Heating Ltd 66
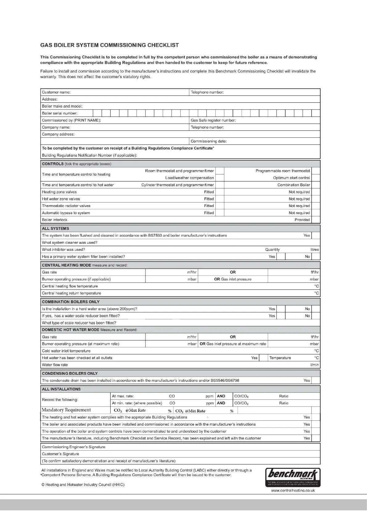
15. GAS BOILER SYSTEM COMMISSIONING CHECKLIST

Bekijk gratis de handleiding van Intergas Rapid 32 Plus, stel vragen en lees de antwoorden op veelvoorkomende problemen, of gebruik onze assistent om sneller informatie in de handleiding te vinden of uitleg te krijgen over specifieke functies.

Productinformatie

MerkIntergas
ModelRapid 32 Plus
CategorieNiet gecategoriseerd
TaalNederlands
Grootte10092 MB