Intergas Rapid 32 Plus handleiding
Handleiding
Je bekijkt pagina 21 van 68

Intergas Heating Ltd 21
6.2 Boiler location
The appliance can be fitted to a mounting frame. The assembly or just the
appliance should be mounted to a wall with sufficient bearing strength. In
case of light wall constructions, resonance sounds may occur.
If the boiler is to be installed in any room or compartment, it does not require
any purpose made ventilation for combustion air. If sited in a room containing
a bath or shower then particular reference is drawn to the current I.E.E.
Wiring Regulations, local Building Regulations or any other local regulations
currently in service.
The boiler is not suitable for external installation unless protected by a
purpose made building such as a boiler house.
The following clearances are recommended for installation purposes: 200 mm
above, 300 mm below and 10 mm at each side. 500 mm is required at the
front but this may be realized by opening a cupboard door.
Flammable fluids and materials must be stored at least 1 metre away from the
boiler.
There must be an earthed electrical supply within a distance of 1 m from the
appliance.
In order to avoid freezing of the condensate discharge, the appliance should
be installed in a frost-free room.
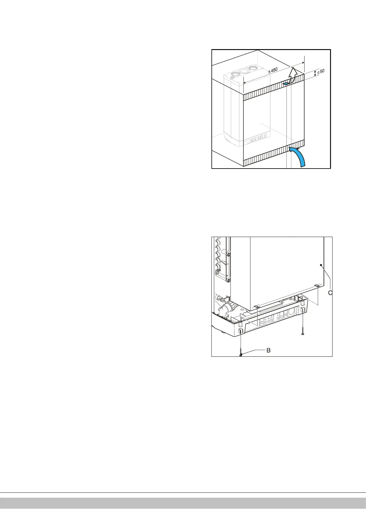
Keep 5 cm free space above the appliance in order to be able to remove the
front panel from the casing.
6.2.1 Installation in a kitchen cupboard
Make sure there is sufficient ventilation above and below the appliance.
When the appliance is placed in a small cupboard, ventilation openings of at
least 50 cm
2
must be created at the top and bottom of appliance to ensure
free flow of air.
6.2.2 Installation in an airing cupboard
Compartment ventilation is not required for a standard airing cupboard (eg 0.6
x 0.6 x 2.3m high).
6.2.3 Remove front panel
Remove the optional pipework cover and the front panel for carrying out work
on the appliance as follows:-
1. Remove the pipework cover (A), if used, forwards.
2. Unscrew both screws (B) at the bottom of the appliance.
3. Lift the front panel (C) and remove it forwards.
Bekijk gratis de handleiding van Intergas Rapid 32 Plus, stel vragen en lees de antwoorden op veelvoorkomende problemen, of gebruik onze assistent om sneller informatie in de handleiding te vinden of uitleg te krijgen over specifieke functies.
Productinformatie
| Merk | Intergas |
| Model | Rapid 32 Plus |
| Categorie | Niet gecategoriseerd |
| Taal | Nederlands |
| Grootte | 10092 MB |




