Intergas Rapid 25 Plus handleiding
Handleiding
Je bekijkt pagina 63 van 68

Intergas Heating Ltd 63
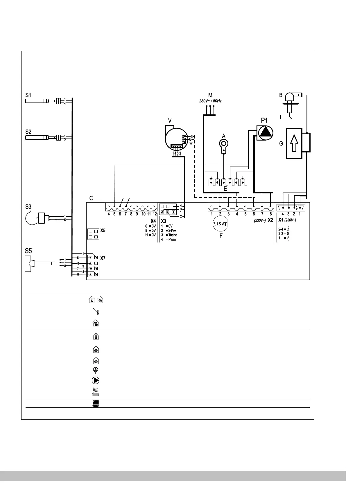
11.5 Electrical diagram
A
Earth connections heat-exchanger
F
Fuse (3.15 A T)
P1
CH pump
S3
DHW sensor
B
Spark plug cover
G
Gas valve + ignition unit
S5
Flow sensor DHW
C
Boiler controller
I
Ionisation-/ ignition probe
S1
Flow sensor
S7
CH water pressure sensor
E
Earth connections boiler controller
M
Main voltage
S2
Return sensor
V
Fan
Connector X4
24V=
6-7
On/off room thermostat (0,1A-24Vdc) and/or frost thermostat (remove connection 6-7)
8-9
Outdoor sensor (12k ohm / 25°C)
11-12
OpenTherm thermostat (remove connection 6-7)
Connector X2
230V~
1-3
Room thermostat 230 AC (1 = Switch live, 3 = Live(fused)
1-3
Frost thermostat 230 AC (1 = Switch live, 3 = Live(fused)
3-6
Power supply (230 V) fan (only 40 kW versions)
2-4
Mains (2 = Live (brown), 4 = Neutral (blue))
7-8
CV-pump (8 = Live (brown), 7 = Neutral (blue)
3-5-6
Shut-off valve, floor heating (3 = Live (brown), 5 = Switch (black), 6 = Neutral (blue) (VC4013 Honeywell
230V~)
Connector X5
Computer interface
Bekijk gratis de handleiding van Intergas Rapid 25 Plus, stel vragen en lees de antwoorden op veelvoorkomende problemen, of gebruik onze assistent om sneller informatie in de handleiding te vinden of uitleg te krijgen over specifieke functies.
Productinformatie
| Merk | Intergas |
| Model | Rapid 25 Plus |
| Categorie | Niet gecategoriseerd |
| Taal | Nederlands |
| Grootte | 10092 MB |




