Infiniton WSD-BBG86WAD handleiding
Handleiding
Je bekijkt pagina 66 van 80

inniton.es66
Como usar
Português
Peças de produto
Devido a inovações tecnológicas, a descrição do produto neste manual pode não corresponder com-
pletamente ao seu aparelho. Informações mais detalhadas correspondem ao produto nal.
• Para seleccionar o programa desejado, rodar o selector
de programas no sentido horário ou anti-horário até
que o marcador no selector de programas esteja no
programa desejado.
• Certicar-se de que o selector de programa está ajus-
tado ao programa desejado.
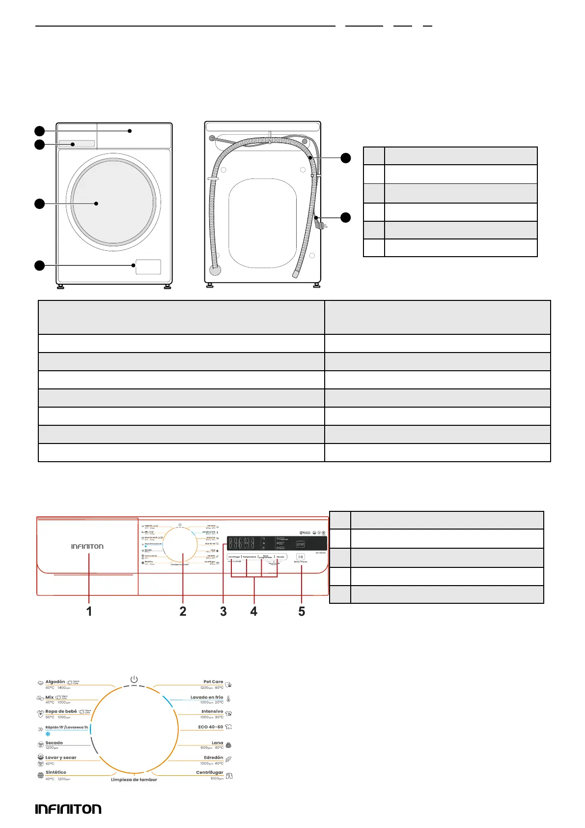
1 Bidón
2 Dispensador
3 Panel de control
4
Manguera de drenaje
5 Cable de alimentación
6 Tapa del ltro de la bomba
Descrição do painel de controlo
1 Compartimento de detergente
2 Selector de programas
3 Painel de controlo
4
Botão de funções adicionais
5
Botão Iniciar / pausar
1
2
3
4
5
6
Selector de programa
Dimensões do produto (altura x largura x profundida-
de)
825 x 595 x 575mm
Capacidade máxima de carga (Kg) 8Kg (Lavado) / 6Kg (Secado)
Tensão e frequência nominal 220-240V ~ 50Hz
Corrente nominal 10A
Potência total (W) 1900
Pressão de água (Mpa) Máxima (1Mpa) Mínima (0.05Mpa)
Número de programas 15
Velocidade de centrifugação (rpm) 1400rpm
Bekijk gratis de handleiding van Infiniton WSD-BBG86WAD, stel vragen en lees de antwoorden op veelvoorkomende problemen, of gebruik onze assistent om sneller informatie in de handleiding te vinden of uitleg te krijgen over specifieke functies.
Productinformatie
| Merk | Infiniton |
| Model | WSD-BBG86WAD |
| Categorie | Niet gecategoriseerd |
| Taal | Nederlands |
| Grootte | 10827 MB |







