Hydra Kool KGH-ES handleiding
Handleiding
Je bekijkt pagina 43 van 62

82
4 Electrical
4.1. Electrical specifications data
Electrical data can be found on the marking plate.
Standard equipment depending on the model type includes led lighting in all shelves 
and top, electrical shutter and anti sweat heaters.
Model
Fans
EVP CND
0,70
0,70
1,05
0,70
0,70
1,05
0,55
0,90
1,1
0,55
0,90
1,1
3,33
8,33
8,33
3,33
8,33
8,33
1
1
1
20,73
26,33
26,93
20,73
26,33
26,93
Lights
0,15
0,2
0,25
0,15
0,2
0,25
Compressor
F.L.A./L.R.A.
16/64
16,2/83
16,2/83
16/64
16,2/83
16,2/83
Electrical shutter
Evap pan
Total amps 
(self contained)
115V/60Hz/1 phase
The data regards to standard options only.
KGH-OF/MS-30-S 
KGH-OF/MS/OS-40-S
KGH-OF/MS/OS-50-S 
KGH-OF/MS/OS-60-S 
KGH-OF/MS-80-S 
KGH-ES-30-S
KGH-ES-40-S
KGH-ES-50-S
KGH-ES-60-S
KGH-ES-80-S
KGH-FD/DS-40-S 
KGH-FD/DS-50-S 
KGH-FD/DS-60-S 
KGH-FD/DS-80-S
|
|
|
|
|
|
|
|
|
|
|
|
|
|
|
|
|
|
|
|
|
|
|
|
|
|
|
|
|
|
|
|
|
|
|
|
|
|
|
|
|
|
|
|
|
|
|
|
|
|
|
|
|
|
|
|
|
|
|
|
|
|
|
|
|
|
|
|
|
|
|
|
|
|
|
|
|
|
|
|
|
|
|
|
43
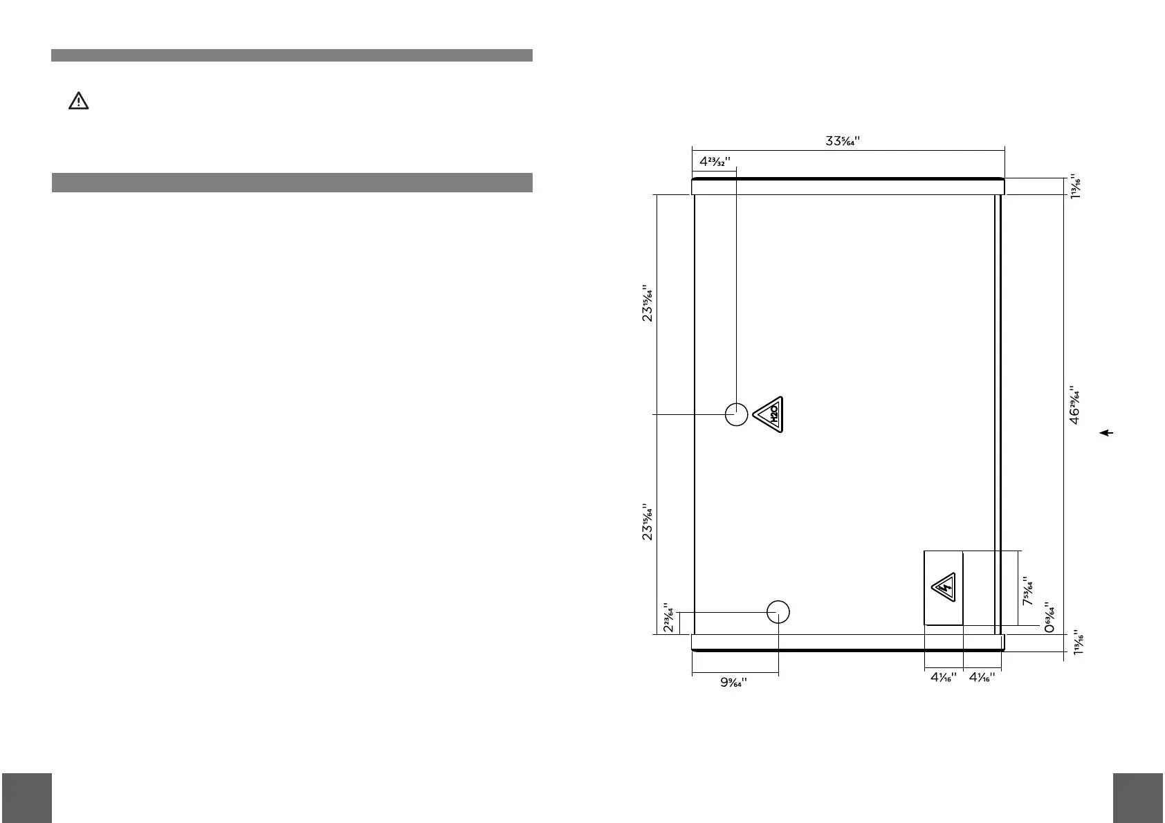
Front
KGH-ES-50-R
Bekijk gratis de handleiding van Hydra Kool KGH-ES, stel vragen en lees de antwoorden op veelvoorkomende problemen, of gebruik onze assistent om sneller informatie in de handleiding te vinden of uitleg te krijgen over specifieke functies.
Productinformatie
| Merk | Hydra Kool | 
| Model | KGH-ES | 
| Categorie | Koelkast | 
| Taal | Nederlands | 
| Grootte | 7901 MB | 







