Hydra Kool KGH-ES handleiding

62 pagina's
PDF beschikbaar

Handleiding

Je bekijkt pagina 41 van 62
84
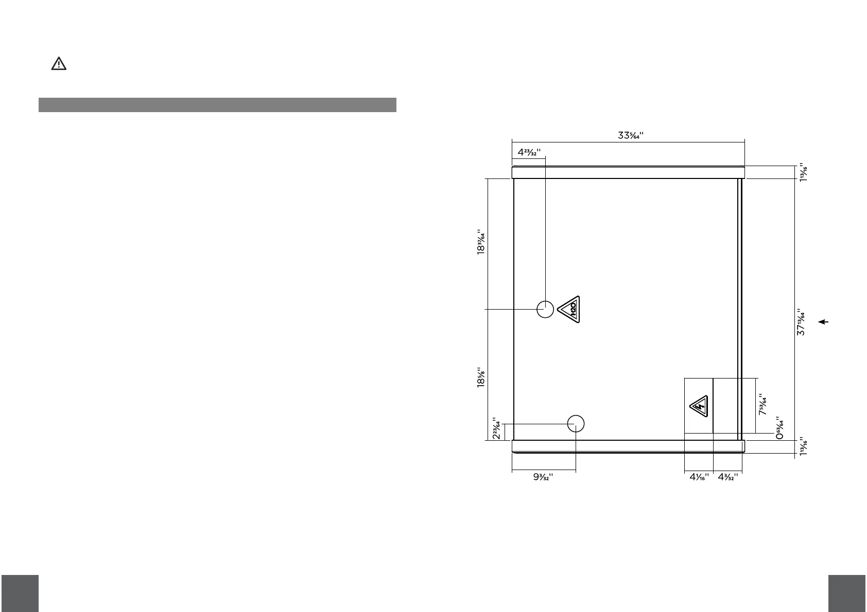
4.2. Electrical service receptacles (optional)
Service receptacles are not intended nor suitable for large motors or other
external appliances. Only for scales and lighted displays.
Type
Max. amps
xx
Receptacle ampacity
GFCI
|
41
KGH-ES-40-R
Front

Bekijk gratis de handleiding van Hydra Kool KGH-ES, stel vragen en lees de antwoorden op veelvoorkomende problemen, of gebruik onze assistent om sneller informatie in de handleiding te vinden of uitleg te krijgen over specifieke functies.

Productinformatie

MerkHydra Kool
ModelKGH-ES
CategorieKoelkast
TaalNederlands
Grootte7901 MB