Hydra Kool KBD-FG handleiding

38 pagina's
PDF beschikbaar

Handleiding

Je bekijkt pagina 10 van 38
10
Drain outlet
Switchboard
Upper output
Implantation
19''
19''2''
2''
3''
4''12''
11''
23''
5'' 4''
41''
6''
28''
34''
KBD-CG/FG-40-S(D)
Front
67
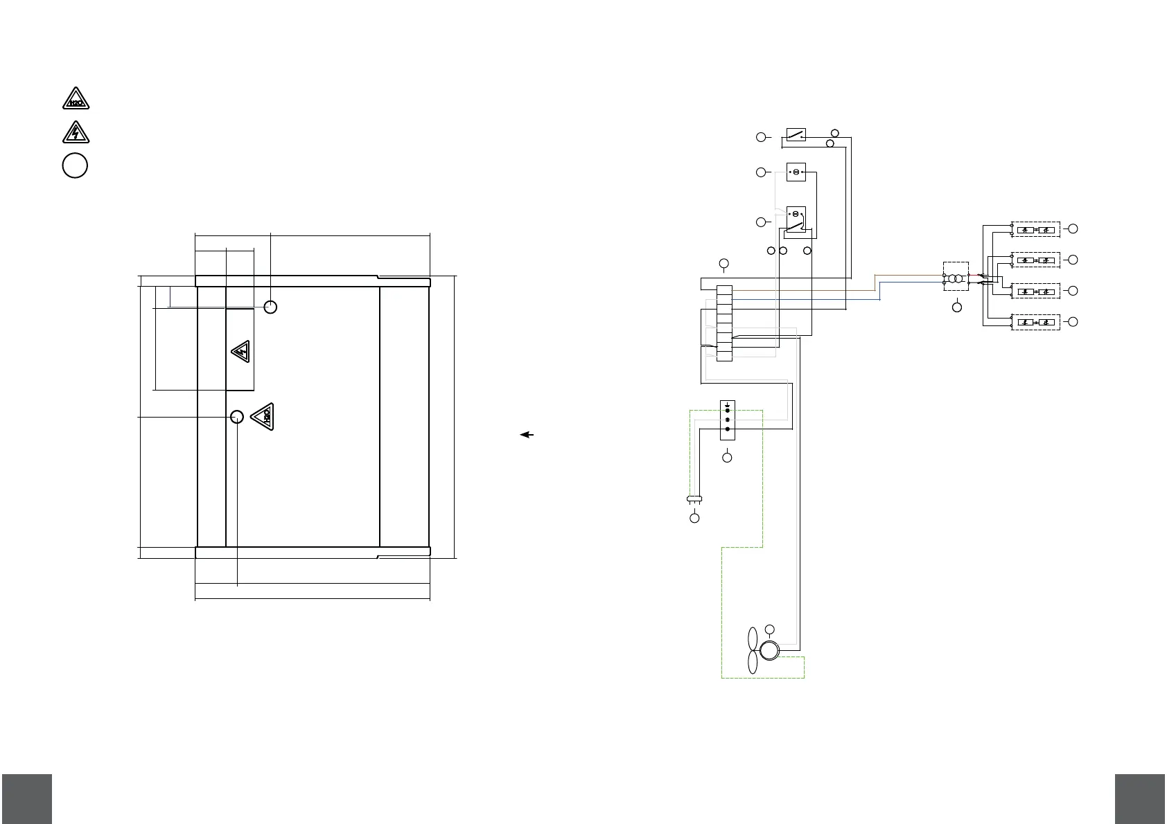
3.3 Electrical wiring diagrams
21
20
22
437 659 108
8
9
3
6
145
M
L
9
N
12
29
30
30
30
30

Bekijk gratis de handleiding van Hydra Kool KBD-FG, stel vragen en lees de antwoorden op veelvoorkomende problemen, of gebruik onze assistent om sneller informatie in de handleiding te vinden of uitleg te krijgen over specifieke functies.

Productinformatie

MerkHydra Kool
ModelKBD-FG
CategorieKoelkast
TaalNederlands
Grootte5284 MB