HTW -CLA-11NOXOBIGN handleiding
Handleiding
Je bekijkt pagina 37 van 72

Installation du chauffe-eau
L'exploitation de l'installation ne peut être
effectuée que par des professionnels autorisés.
Veuillez faire attention aux exigences spéciales
pour l'installation faites par le pays local.
Veuillez tenir compte des réglementations en
vigueur concernant la pression de collage des
types de gaz et des types de gaz sur la plaque
signalétique de l'appareil de chauffage.
Avant de raccorder le tuyau de gaz et le tuyau
d'eau à l'appareil de chauffage, veillez nettoyer
ces tuyaux pour éliminer les impuretés et autres
polluants.
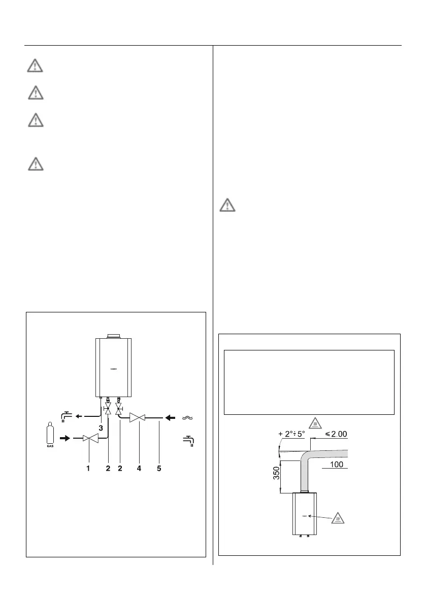
Installation de conduite de gaz
Une vanne d'étanchéité G1 / 2 doit être installée sur
le tuyau d'alimentation en gaz, comme indiqué sur la
figure.
Installez un réducteur sur le tuyau d'alimentation en
gaz si nécessaire (uniquement pour l'alimentation en
butane)
In
stallation de conduites d'eau et de
ga
z
1. R
éducteur
2. Vanne
d'étanchéité
3. Sort
ie d'eau
c
haude
4. R
éducteur (au
c
hoix)
5. Entrée d'eau
froide
In
stallation de conduite d'eau
Une vanne d'étanchéité doit être installée sur le
tuyau d'eau froide, comme indiqué dans la figure
suivante.
Le fabricant recommande l'installation d'un
réducteur sur le tuyau d'eau froide.
En cas de tubes ondulés, le rayon de courbure
minimal doit être de 20 mm.
Raccordez la vanne d'étanchéité au tuyau d'eau
froide raccordé.
Raccordez la vanne d'étanchéité à l'entrée d'eau
froide de l'appareil de chauffage.
Raccordez la sortie d'eau chaude de l'appareil de
chauffage au tuyau d'eau chaude.
In
stallation de tuyau d'échappement
L'appareil de chauffage doit être équipé d'un
tuyau d'échappement ou d'une cheminée.
Veuillez faire attention aux réglementations
spécifiques pour l'installation requises par le
pays local.
Après la fin de l'installation du tuyau d'échappement,
l'appareil de chauffage peut être démarré pour
fonctionner. Faites attention aux exigences pour la
spécification s'il vous plaît.
Les parties du tuyau d'échappement doivent être
équipées d'un entonnoir à gaz solide avec étanchéité.
Le tuyau d'échappement ne peut pas être orienté
vers le plafond.
Une entrée d'air devrait être introduite dans l'espace
d'installation à la place près du sol.
T
uyau d'échappement
A
ttention:
Assu
rez
-vo
us que la protection d'isolation contre la
comb
ustion est nécessaire. Si le conduit de fumée est
fi
xé au mur en bois ou à un autre matériau sans
rési
stance au feu, il est obligatoire de réaliser une
iso
lation anti
-feu o
u l'installation de l'appareil n'est pas
au
torisée.
SOYEZ
PRUDENT DE BRÛLER!
~
~
35
Bekijk gratis de handleiding van HTW -CLA-11NOXOBIGN, stel vragen en lees de antwoorden op veelvoorkomende problemen, of gebruik onze assistent om sneller informatie in de handleiding te vinden of uitleg te krijgen over specifieke functies.
Productinformatie
| Merk | HTW |
| Model | -CLA-11NOXOBIGN |
| Categorie | Niet gecategoriseerd |
| Taal | Nederlands |
| Grootte | 6976 MB |


