HTW -CLA-11NOXOBIGN handleiding
Handleiding
Je bekijkt pagina 23 van 72

Installation of the heater
Installation of gas pipe
The operation of the installation can only be carried out
by authorized professionals.
Please pay attention to the special requirements for
installation made by the local country.
Please pay attention to the related regulations on the
bonding pressure of gas and gas types on the nameplate
of the heater.
Before connecting the gas pipe and water pipe to the
heater,please pay attention to the cleanout of these pipes
to remove im
purities and other pollutants.
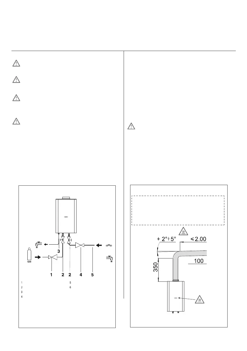
A sealing valve of G1/2 must be installed on the gas supply
pipe, as shown in the figure.
If necessary, please install a reductor on the gas supply pipe
(only for the butane supply)
Installation of water pipe and gas
pipe
Sealing valve
Installation of water pipe
Installation of exhaust pipe
A sealing valve shall be installed on the pipe of cold water, as
shown in the following figure.
The manufacturer recommends the installation of a reductor on
the cold water pipe.
In case of corrugated pipes, the minimum bending radius shall
be 20mm.
Connect the sealing valve to the attached cold water pipe.
Connect the sealing valve to the cold water input of the heater.
Connect the hot water outpu
t of the heater to the hot water pipe.
The heater should be equipped with an exhaust pipe or a
chimney. Please pay attention to the specific regulations for
installation required by the local country.
Only after finishing the installation of the exhaust pipe can the
heater be started for operation. Please pay attention to the require-
ments for the specification.
The parts of the exhaust pipe should be equipped with solid gas
funnel with water tightness.
The exhaust pipe canno
t be oriented to ceiling.
An air intake should be introduced into the space of installation
in the place near ground.
Exhaust pipe
~
~
please make neccessary fire resistance insulation
protection to the flue pipe. If the flue pipe is fixed to the
wooden wall or other material with no fire resistance, it is
compulsory to do fire resistance insulation,or the unit
is not allowed to be installed.
BE CAREFUL OF BURNING!
Warning:
Reductor
Input of cold water
Output of hot water
Reductor (optional)
21
Bekijk gratis de handleiding van HTW -CLA-11NOXOBIGN, stel vragen en lees de antwoorden op veelvoorkomende problemen, of gebruik onze assistent om sneller informatie in de handleiding te vinden of uitleg te krijgen over specifieke functies.
Productinformatie
| Merk | HTW |
| Model | -CLA-11NOXOBIGN |
| Categorie | Niet gecategoriseerd |
| Taal | Nederlands |
| Grootte | 6976 MB |


