Hoshizaki KMH-2100SRJZ3 handleiding
Handleiding
Je bekijkt pagina 9 van 39

9
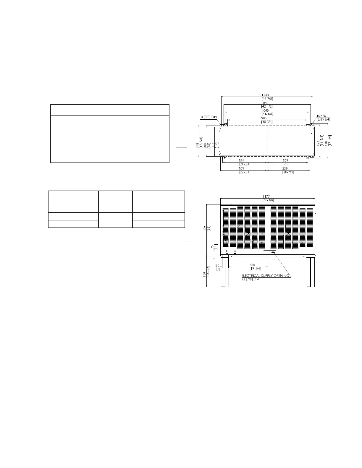
3. Remote Condenser Unit URC-22FZ
Icemaker Model URC Model
Heat of Rejection
AT 90°F (32°C)
WT 70°F (21°C)
KMH-2100SRJZ URC-22FZ 22,600 BTU/hr
KMH-2100SRJZ3 22,900 BTU/hr
NOTICE
Allow 24" (61cm) clearance
at front and rear for proper
air circulation and ease of
maintenance and/or service
should they be required.
Units: mm [in.]
Rear
Top
Bekijk gratis de handleiding van Hoshizaki KMH-2100SRJZ3, stel vragen en lees de antwoorden op veelvoorkomende problemen, of gebruik onze assistent om sneller informatie in de handleiding te vinden of uitleg te krijgen over specifieke functies.
Productinformatie
| Merk | Hoshizaki |
| Model | KMH-2100SRJZ3 |
| Categorie | Niet gecategoriseerd |
| Taal | Nederlands |
| Grootte | 3252 MB |







