Hoshizaki KM-1900SRJZ3 handleiding
Handleiding
Je bekijkt pagina 14 van 44

14
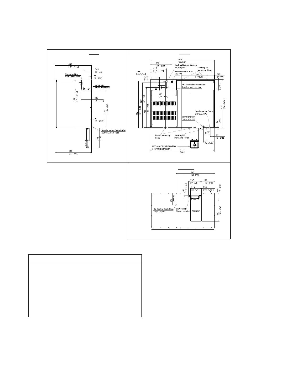
4. Remote Models KM-1900SRJZ/3, KM-2200SRJZ3, and KM-2600SRJZ3
NOTICE
• Allow 6" (15 cm) clearance at rear,
sides, and top for proper air circulation
and ease of maintenance and/or
service should they be required.
• The ice storage bin opening must
match the bottom opening as in the
illustration.
Rear
Side
Bottom
Units: mm [in.]
Bekijk gratis de handleiding van Hoshizaki KM-1900SRJZ3, stel vragen en lees de antwoorden op veelvoorkomende problemen, of gebruik onze assistent om sneller informatie in de handleiding te vinden of uitleg te krijgen over specifieke functies.
Productinformatie
Merk | Hoshizaki |
Model | KM-1900SRJZ3 |
Categorie | Niet gecategoriseerd |
Taal | Nederlands |
Grootte | 3818 MB |