Hoshizaki KM-1301SRJZ3 handleiding
Handleiding
Je bekijkt pagina 13 van 44

13
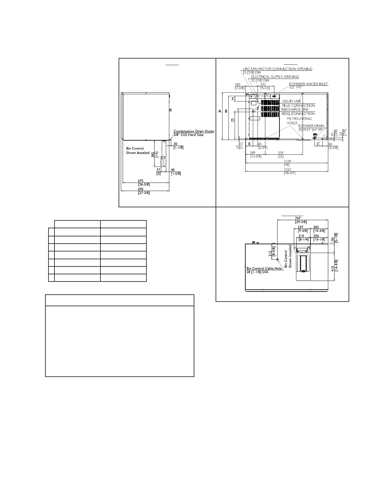
3. Remote Models KM-1301SRJZ/3 and KM-1601SRJZ/3
NOTICE
• Allow 6" (15 cm) clearance at rear,
sides, and top for proper air circulation
and ease of maintenance and/or
service should they be required.
• The ice storage bin opening must
match the bottom opening as in the
illustration.
Rear
Side
Bottom
Model Shown: KM-1301SRJZ
Model Shown: KM-1301SRJZ
Model Shown: KM-1301SRJZ
Units: mm [in.]
KM-1301SRJZ/3 KM-1601SRJZ/3
A 695 [27-3/8] 695 [27-3/8]
B 643 [25-3/8] 643 [25-3/8]
C 115 [4-1/2] 115 [4-1/2]
D 442 [17-3/8] 442 [17-3/8]
E 115 [4-1/2] 115 [4-1/2]
F 76 [3] 100 [3-7/8]
G 76 [3] 100 [3-7/8]
Bekijk gratis de handleiding van Hoshizaki KM-1301SRJZ3, stel vragen en lees de antwoorden op veelvoorkomende problemen, of gebruik onze assistent om sneller informatie in de handleiding te vinden of uitleg te krijgen over specifieke functies.
Productinformatie
Merk | Hoshizaki |
Model | KM-1301SRJZ3 |
Categorie | Niet gecategoriseerd |
Taal | Nederlands |
Grootte | 3818 MB |