Hoshizaki KM-1301SRJZ3 handleiding
Handleiding
Je bekijkt pagina 11 van 44

11
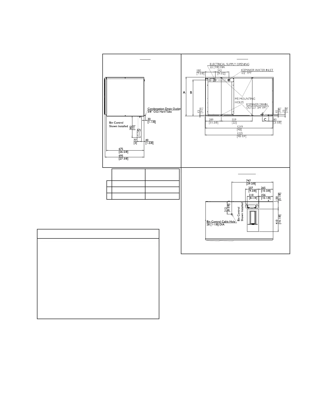
B. Dimensions/Connections
1. Air-Cooled Models (SAJ/3)
NOTICE
• For all models except KM-1601SAJ/3,
allow 6" (15 cm) clearance at rear,
sides, and top for proper air circulation
and ease of maintenance and/or
service should they be required. For
KM-1601SAJ/3, allow 9" (23 cm)
clearance at rear, sides, and top.
• The ice storage bin opening must
match the bottom opening as in the
illustration.
Units: mm [in.]
Rear
Side
Bottom
Model Shown: KM-1301SAJ
KM-1301SAJ/3
KM-1601SAJ/3
KM-1900SAJ/3
A 695 [27-3/8] 925 [36-3/8]
B 643 [25-3/8] 873 [34-3/8]
C 115 [4-1/2] 130 [5-1/8]
Model Shown: KM-1301SAJ
Model Shown: KM-1301SAJ
Bekijk gratis de handleiding van Hoshizaki KM-1301SRJZ3, stel vragen en lees de antwoorden op veelvoorkomende problemen, of gebruik onze assistent om sneller informatie in de handleiding te vinden of uitleg te krijgen over specifieke functies.
Productinformatie
Merk | Hoshizaki |
Model | KM-1301SRJZ3 |
Categorie | Niet gecategoriseerd |
Taal | Nederlands |
Grootte | 3818 MB |