Hoshizaki FS-1501MLJ-C handleiding
Handleiding
Je bekijkt pagina 8 van 38

8
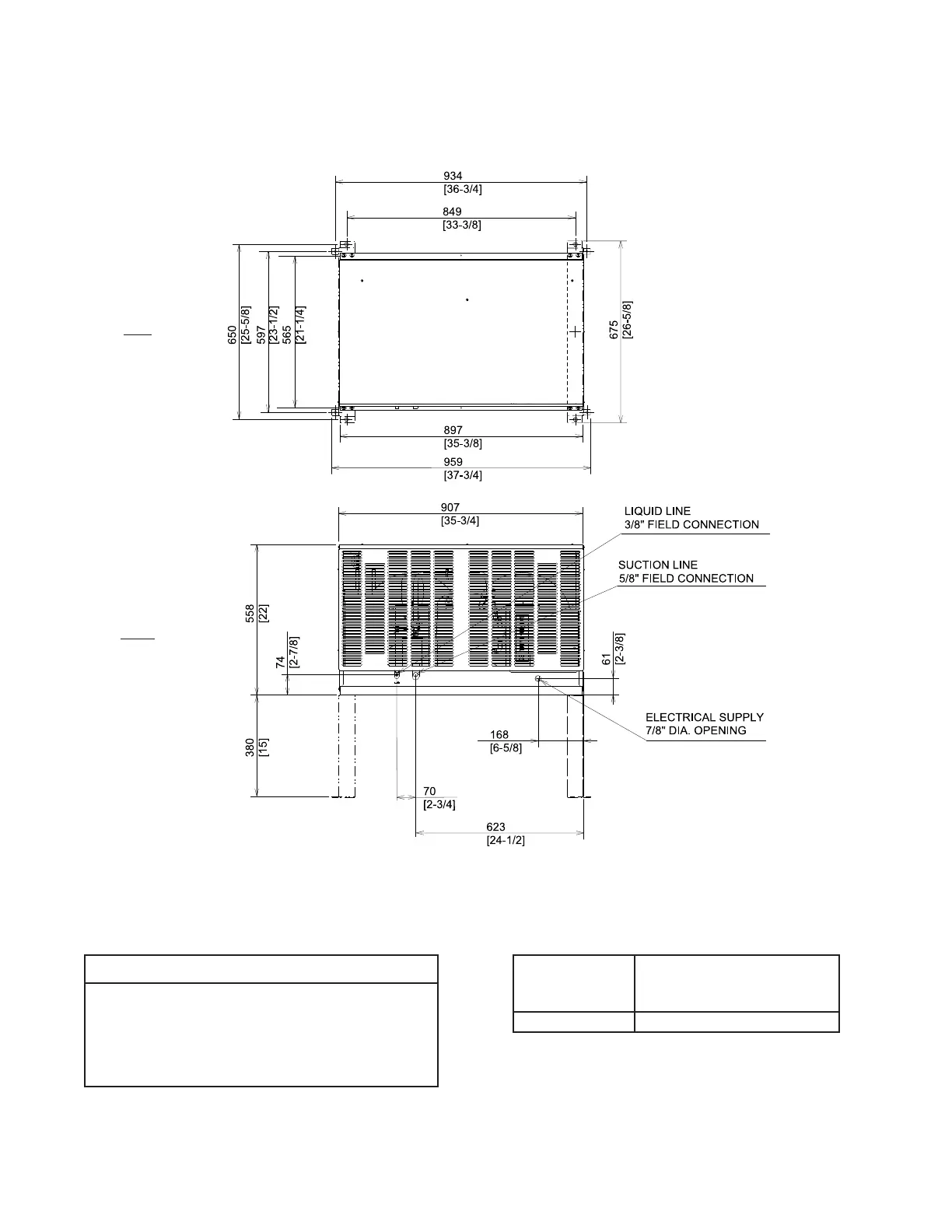
2. SRC-14J
Unit: mm [in.]
Note: Legs are included with condensing unit.
Leg height is 380 mm (14-15/16 in.).
Rear
Top
Icemaker Model
SRC-14J Heat of Rejection
AT 90°F (32°C)
WT 70°F (21°C)
FS-1501MLJ-C 15,300 BTU/hr
NOTICE
Allow 24" (61-cm) clearance at front
and rear for proper air circulation and
ease of maintenance and/or service
should they be required.
Bekijk gratis de handleiding van Hoshizaki FS-1501MLJ-C, stel vragen en lees de antwoorden op veelvoorkomende problemen, of gebruik onze assistent om sneller informatie in de handleiding te vinden of uitleg te krijgen over specifieke functies.
Productinformatie
Merk | Hoshizaki |
Model | FS-1501MLJ-C |
Categorie | Niet gecategoriseerd |
Taal | Nederlands |
Grootte | 3389 MB |