Hoshizaki FS-1501MLJ-C handleiding
Handleiding
Je bekijkt pagina 23 van 38

23
G. Startup
1. Bin Control Setting
An ultrasonic sensor is used as the bin control to control the level of ice in the dispenser
unit/ice storage bin. The bin control setting must be set to match the application to avoid
possible icemaker movement, water leakage, or ice overow.
WARNING
• Improper adjustment may adversely affect safety, performance, component life,
and warranty coverage.
• On dispenser unit applications, do not increase ice level above the recommended
setting listed below. Higher ice levels could result in icemaker movement, water
leakage, or ice overow.
NOTICE
Do not allow top kits or top kit risers (if applicable) to interfere with the bin control
lens sensing area or the icemaker will not operate properly.
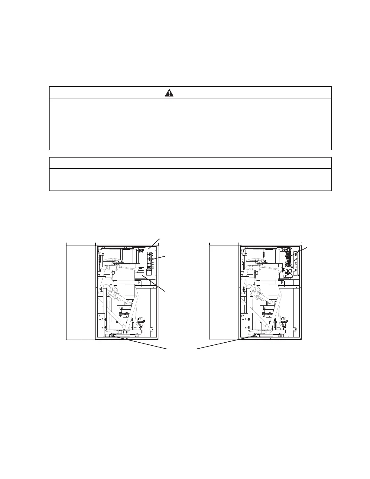
1) Move the power switch to the "OFF" position. Make sure the power supply is off to
the icemaker and condensing unit. Remove the front panel to access the control box
assembly. Remove the control box cover to access the control board. See Fig. 10 and
Fig. 11.
2) Conrm the correct control board bin control setting required for your application and
adjust according to the following table. See Fig. 12.
Fig. 11Fig. 10
Control Board
Control Box
Cover
Power Switch
Control Box Assembly
Ultrasonic
Bin Control
Bekijk gratis de handleiding van Hoshizaki FS-1501MLJ-C, stel vragen en lees de antwoorden op veelvoorkomende problemen, of gebruik onze assistent om sneller informatie in de handleiding te vinden of uitleg te krijgen over specifieke functies.
Productinformatie
Merk | Hoshizaki |
Model | FS-1501MLJ-C |
Categorie | Niet gecategoriseerd |
Taal | Nederlands |
Grootte | 3389 MB |