Hoshizaki F-2001MWJ handleiding
Handleiding
Je bekijkt pagina 12 van 51

12
34
[1 - 3/8 ]
Side
Rear
Bottom
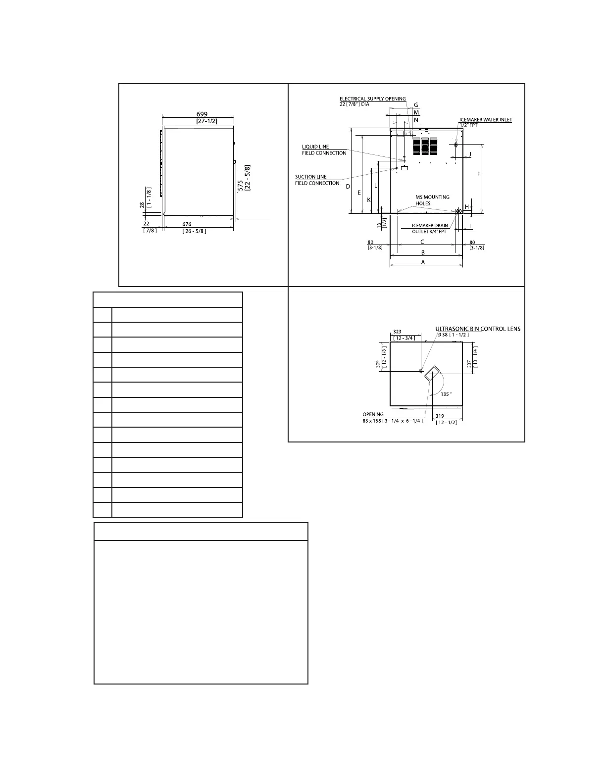
4. Low Side, Parallel Rack System Models (F-2001MLJ)
F-2001MLJ
A 768 [30-1/4]
B 762 [30]
C 602 [23-11/16]
D 874 [34-7/16]
E 817 [32-3/16]
F 705 [27-3/4]
G 165 [6-1/2]
H 24 [15/16]
I 43 [1-11/16]
J 80 [3-1/8]
K 466 [18-38]
L 519 [22-1/4]
M 71 [2-1/4]
N 79 [3-1/8]
NOTICE
• Allow 6" (15-cm) clearance at rear
and sides for proper air circulation
and ease of maintenance and/or
service should they be required.
Allow 24" (61-cm) clearance at top
to allow for removal of the auger.
• The dispenser unit/ice storage
bin opening must accommodate
the bottom opening as in the
illustration.
Units: mm [in.]
Bekijk gratis de handleiding van Hoshizaki F-2001MWJ, stel vragen en lees de antwoorden op veelvoorkomende problemen, of gebruik onze assistent om sneller informatie in de handleiding te vinden of uitleg te krijgen over specifieke functies.
Productinformatie
Merk | Hoshizaki |
Model | F-2001MWJ |
Categorie | Niet gecategoriseerd |
Taal | Nederlands |
Grootte | 4533 MB |