Hoshizaki C-80BAK-DS handleiding

46 pagina's
PDF beschikbaar

Handleiding

Je bekijkt pagina 13 van 46
13
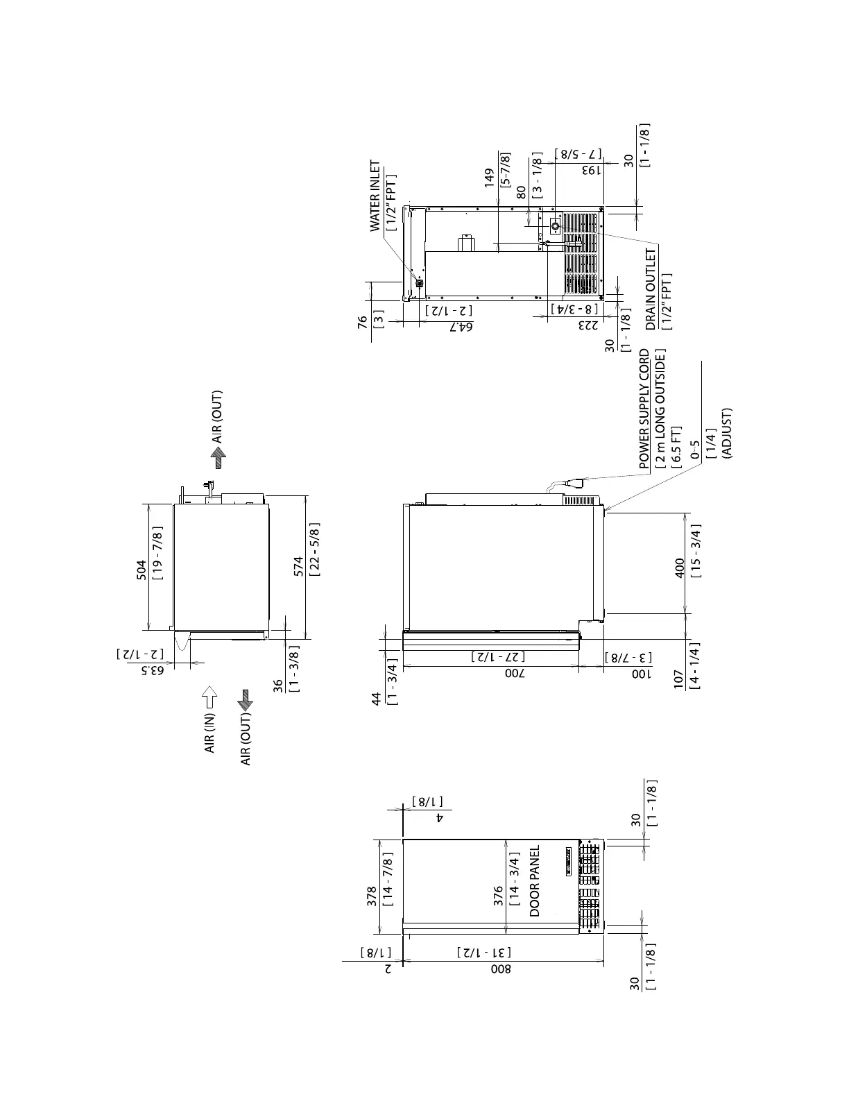
3. C-80BAK-AD
Units: mm [in.]

Bekijk gratis de handleiding van Hoshizaki C-80BAK-DS, stel vragen en lees de antwoorden op veelvoorkomende problemen, of gebruik onze assistent om sneller informatie in de handleiding te vinden of uitleg te krijgen over specifieke functies.

Productinformatie

MerkHoshizaki
ModelC-80BAK-DS
CategorieKoelkast
TaalNederlands
Grootte3777 MB