Hoshizaki AM-50BAK handleiding
Handleiding
Je bekijkt pagina 22 van 46

22
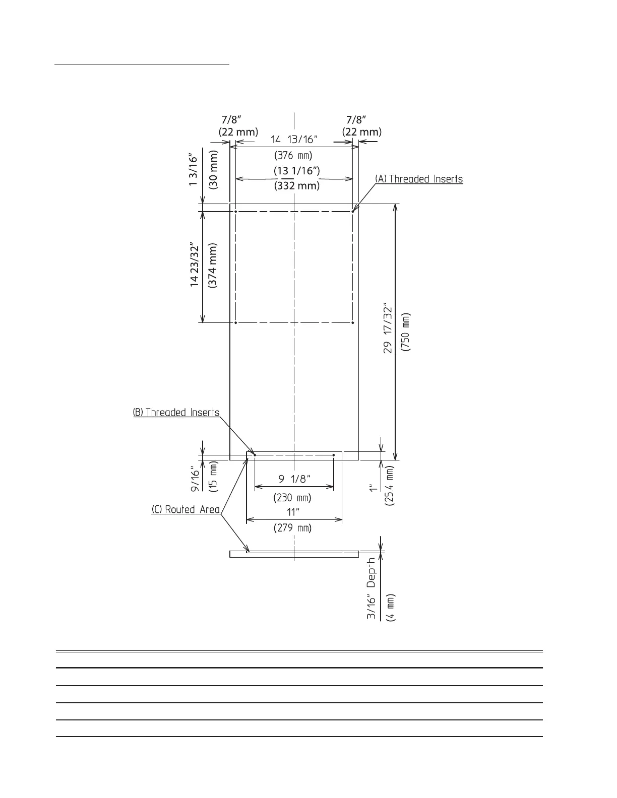
(2) Overlay Panel Specication
Use the specication that applies to your appliance (AM-50BAK-DS or
AM-50BAK-ADDS) and the directions that follow to prepare your overlay panel.
(a) AM-50BAK-DS
AM-50BAK-DS Overlay Panel Specication
Overlay Panel Height 29 17/32" (750 mm)
Overlay Panel Width 14 13/16" (376 mm)
Overlay Panel Thickness 5/8" (16 mm) minimum; 3/4" (19 mm) maximum
Overlay Panel and Door Weight (total) 20 lb. (9 kg) maximum
Bekijk gratis de handleiding van Hoshizaki AM-50BAK, stel vragen en lees de antwoorden op veelvoorkomende problemen, of gebruik onze assistent om sneller informatie in de handleiding te vinden of uitleg te krijgen over specifieke functies.
Productinformatie
| Merk | Hoshizaki |
| Model | AM-50BAK |
| Categorie | Niet gecategoriseerd |
| Taal | Nederlands |
| Grootte | 3914 MB |







