Hoshizaki AM-50BAK-AD handleiding

46 pagina's
PDF beschikbaar

Handleiding

Je bekijkt pagina 11 van 46
11
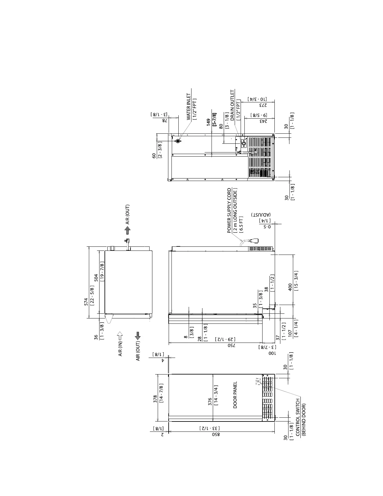
C. Dimensions/Connections
1. AM-50BAK
Units: mm [in.]

Bekijk gratis de handleiding van Hoshizaki AM-50BAK-AD, stel vragen en lees de antwoorden op veelvoorkomende problemen, of gebruik onze assistent om sneller informatie in de handleiding te vinden of uitleg te krijgen over specifieke functies.

Productinformatie

MerkHoshizaki
ModelAM-50BAK-AD
CategorieNiet gecategoriseerd
TaalNederlands
Grootte3914 MB